EasyManua.ls Logo

Philips FWM589 - Page 53

Philips FWM589
91 pages
Print Icon
To Next Page IconTo Next Page
To Next Page IconTo Next Page
To Previous Page IconTo Previous Page
To Previous Page IconTo Previous Page
Loading...
8-9 8-9
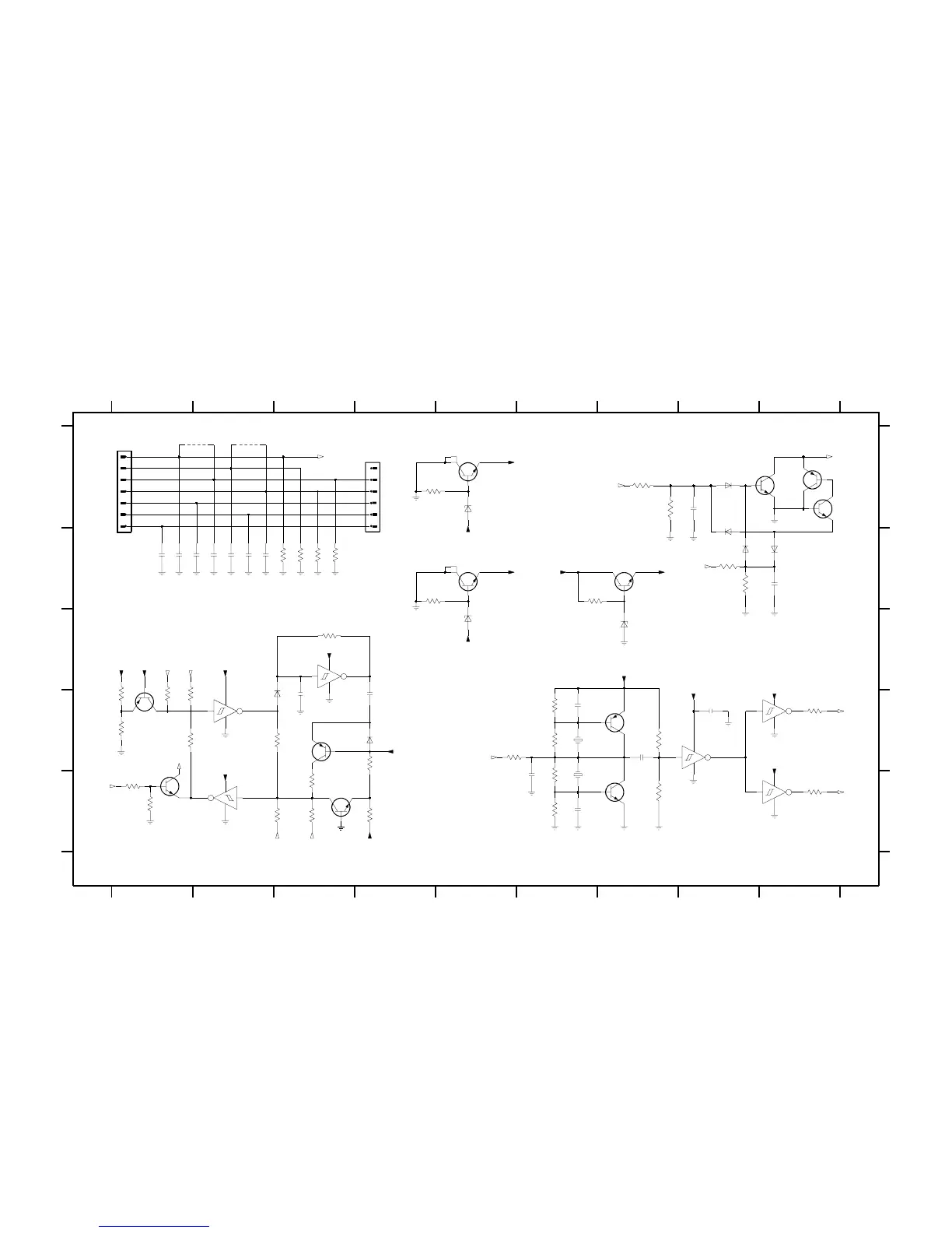
AMPLIFIER UCD BOARD (BTL MASTER/SLAVE) - CIRCUIT DIAGRAM PART 2
1201 A1
1202 A4
1203 E6
1204 D6
2201 B2
2202 B1
2203 E6
2204 E6
2205 D7
2206 D6
2207 D8
2208 B9
123456789
123456789
A
B
C
D
E
A
B
C
D
E
2209 A8
2210 D3
2211 D4
2212 B1
2213 B2
2214 B2
2215 B1
2216 B2
3201 A4
3202 B4
3203 E1
3204 B6
3205 D6
3206 E6
3207 D5
3208 D6
3209 E6
3210 D7
3211 E7
3212 D1
3213 D1
3214 C3
3215 D3
3216 E4
3217 D1
3218 D1
3219 D1
3220 E3
3222 E3
3223 E1
3224 D4
3225 A7
3226 B8
3231 B3
3232 B3
3233 B3
3234 B3
3235 E3
3236 D9
3237 E9
3238 A7
3239 B8
4201 A2
4202 A2
6200 A5
6201 C7
6202 C5
6203 B8
6204 B9
6205 D2
6206 D4
6210 A8
6211 B8
7200 A5
7201 B7
7202 E7
7203 D7
7204 E1
7205 A9
7206 A9
7207 D1
7208 D3
7209 E3
7210-A D2
7210-B E2
7210-C C3
7210-D E9
7210-E D8
7210-F D9
7211 B5
7212 A8
7212
BC847CW
6
2202
10n
3219
100R
3237
1M
1n0
74HC14D
7210-E
11 10
14
7
270K
3210
1M0
3206
1203
410K
6202
PDZ-10B
BAS316
6206
BAS316
74HC14D
7210-A
12
14
7
6210
10K
3207
1202
FE-BT-VK-NA
1
2
3
4
5
2213
1n0
10K
3213
98
14
7
74HC14D
7210-D
56K
3217
6205
BAS316
10K
3224
74HC14D
7210-B
34
14
7
22K
3202
1M
3225
3235
33K
100K
BC846BW
7204
3223
100K
100K
3220
3226
3236
100R
# 4202# 4201
10K
1n0
2212
10K
3232
# 3233
3201
22K
2210
470n
BC857CW
7203
10K
# 3234
3205
1M0
1M0
3214
2207
100n
BC847CW
7209
375K
1204
3
4
5
6
7
FE-BT-VK-N
1201
1
2
BC857CW
7206
6211
BAS316
7210-C
74HC14D
56
14
7
3238
1M
2215
1n0
BC846BW
7201
1n0
2214
2209
10V1u0
3222
100K
100K
3218
6201
PDZ-5.6B
120p
2203
6204
BAS316
6203
BAS316
2216
1n0
2201
470p
2204
100K
3216
7202
BC847CW
7208
BC857CW
3209
180K 180K
3208
1M
3239
10V1u0
2208
3203
100K
22K
3204
7211
PZT2222A
82K
3212
100K
3215
14
7
3211
270K
7210-F
74HC14D
13 12
7205
BC847CW
2206
470p
PZT2222A
7200
PDZ-10B
6200
BC857CW
7207
10n
2205
2211
100p
L_REF
3231
10K
DC
CLK1
CLK2
PDOWN
ENA
CL1+
CL2+
Vcc
Vcc
RIGHT
R_REF
DC
OUTCH2
Vcc
HOP
Vcc
Vcc
LEFT
ENA
HOP
OUTCH1
+VB1
CL2-
+VB2
Vcc
Vcc
CL1-
Vcc
-VB1
Vcc
Vcc
-VBb
VDR1
-VBa
VDR2
3104 213 3536 pt2 dd wk0343
AMPLIFIER UCD (PART 2)
Note : Some values may varies, see respective parts list for correct value.
# : Provision

Related product manuals