EasyManua.ls Logo

Philips N 4450 - Hall Motor Operation; Hall Generator and Rotor Position; Hall Motor Control Circuitry

Philips N 4450
24 pages
To Previous Page IconTo Previous Page
To Previous Page IconTo Previous Page
Loading...
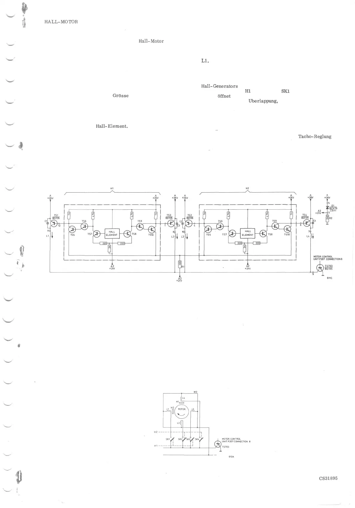
HALL-MOTOR
Der Hall-Motor ist ein Gleichstrommotor mit einem Dauer-
magnet. Im Gegensatz zu dem üblichen Gleichstrommotor mit
einem mechanischen Kollektor wird beim
Hall-Motor
die
Steuerung in elektronischer Weise versorgt. Dazu sind die
Motorspulen in den Stator aufgenommen und rotiert der
Magnet.
Um den Winkelstand des Magnets zu bestimmen, verwendet
man das Magnetfeld des Rotors. Der Rotor ist in einer
derartigen Weise konstruiert, dass das Magnetfeld als
Funktion des Drehwinkels sinusförmig verläuft.
Die Winkeldetektion geschieht durch einen sogenannten Hall-
Generator. Das Hall-Element, das ein Teil des Generators
ist, hat die Eigenschaft, dass die Spannung an den Elektroden
des Elements in Polarität und
Grosse
abhängig ist von dem
Magnetfeld in dem sich das Element befindet. Abbildung 26
zeigt die Prinzipschaltung des Hall-Generators. Der punk-
tierte Teil ist in eine integrierte Schaltung (I. C.) unterge-
bracht.
Zwischen den Basen der Differenzverstärkerschaltung TS7
und TS8 sieht man das
Hall-Element.
Abhängig von der
Polarität des Magnetfeldes des Rotors wird die Basis von TS7
oder die Basis von TS8 mit einer negativen Spannung
versehen.
Nehmen wir an, dass die Basis von TS7 eine negative Span-
nung bekommt.
Dieser Transistor wird dann nicht mehr leitend sein. Da
demzufolge der Kollektor wenig negative Spannung bekommt,
wird TS6 aufgesteuert. Der Kollektor von TS5 bekommt eine
negative Spannung und steuert dadurch den Transistor TS1,
der sich ausserhalb der integrierten Schaltung befindet.
Dieser Transistor liefert jetzt den Stromr die Motorspule
Ll.
Jetzt entsteht eine Situation wie Abb. 27 zeigt. Die 2 Hall-
Generatoren sind unter einen Winkel von 90° in bezug auf-
einander um den Magnet aufgestellt.
Wie sich aus obenstehendem ergibt, kann die Funktion des
Hall-Generators
einfachheitshalber als ein Schalter gesehen
werden. Generator
Hl
bedient dann
SKI
und SK3 und Genera-
tor H2
öffnet
oder schliesst die "Schalter" SK2 und SK4.
Abgesehen von einer
Überlappung,
wird über eine Rotor-
verdrehung von 90° stets ein "Schalter" geschlossen und des-
halb wird eine Spule stromführend. Dazu ist noch zu bemer-
ken, dass der Strom nur in einer Spule eingeschaltet wird
und seine Richtung nicht ändert, wie dies bei einem
Kollektormotor der Fall ist.
Die Grosse des Stromes durch die Spulen wird durch das
Mass bestimmt, in dem TS703 mittels der
Tacho-Reglung
aufgesteuert wird.r eine Beschreibung dieser Tacho-
Reglung siehe "Motorregeleinheit".
Fig. 26
Fig. 27
CS31895

Related product manuals