EasyManua.ls Logo

Primal PSPR0020 - Page 15

Primal PSPR0020
24 pages
Print Icon
To Next Page IconTo Next Page
To Next Page IconTo Next Page
To Previous Page IconTo Previous Page
To Previous Page IconTo Previous Page
Loading...
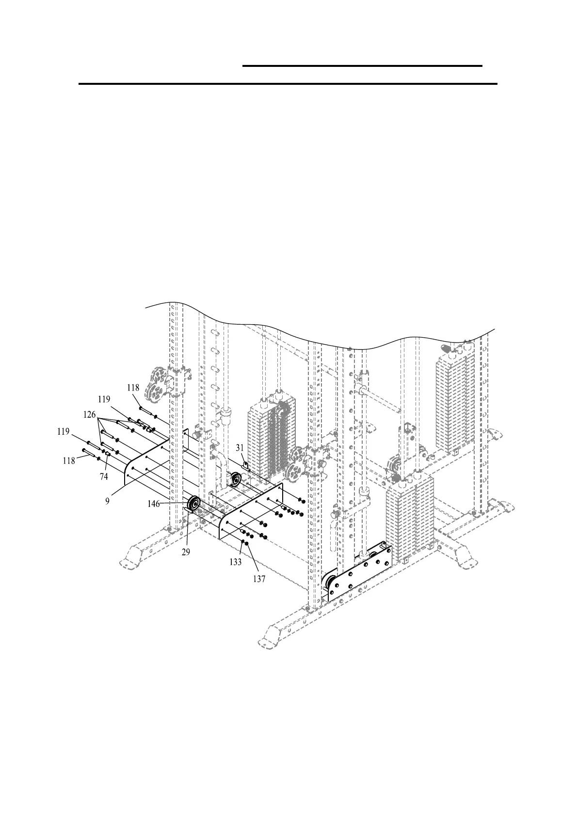
ASSEMBLY DIAGRAM 8 USE A PARTNER TO HELP WITH THIS STEP
REMEMBER: Only hand tighten all nuts and bolts until whole machine is assembled
1. (See the pulley exploded diagram for more detail.) Attach BAFFLE (9) to REAR SILIDE FRAME (5)
andRIGHTANDLEFTBASE(1&2)withBOLTM12*85(126),WASHER12(134)andLOCKNUT
M12(138).
2. AttachPULLEY(146)toBAFFLE(9)withNYLO NBUSHING(74),BOLTM10*90(119),WASHER
10(133)andLOCKNUTM10(137).
3. Attach ROUND TUBE (29) to BAFFLE (9) with BOLT M10*85 (118), WASHER 10 (133) and
LOCKNUTM10(137).
4. Attach HOLDER (31) to BAFFLE (9) with BOLT M10*85 (118), WASHER 10 (133) and LOCK
NUTM10(137).