EasyManua.ls Logo

Pro-face PFXGP4601TAA - GP-4300 Series Parts Identification

Pro-face PFXGP4601TAA
241 pages
Print Icon
To Next Page IconTo Next Page
To Next Page IconTo Next Page
To Previous Page IconTo Previous Page
To Previous Page IconTo Previous Page
Loading...
GP4000 Series Hardware Manual
33
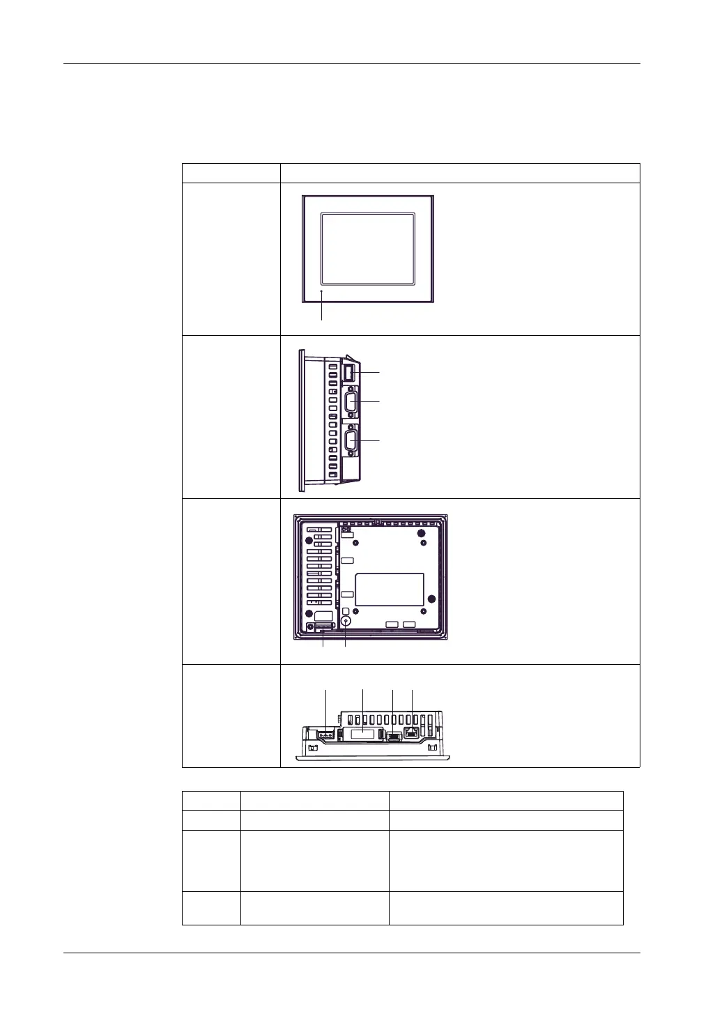
GP-4300 Series Parts Identification
NOTE:
z If you are using the rear mount model, refer to Parts Identification and Functions
(see page 176).
Side GP-4300 Series
Front
Right
Rear
Bottom
Part Name Description
A Status LED
*1
B USB (Type A) Interface Conforms to USB2.0 (Type A) x 1. Power
supply voltage: 5Vdc+/-5%. Output Current:
500 mA or less. Maximum communication
distance: 5 m (16.4 ft).
C Serial Interface (COM1) RS-232C Serial Interface. Connector: D-Sub 9
pin (plug) x 1.
A
B
C
D
EF
E
G
H
I

Table of Contents

Related product manuals