EasyManua.ls Logo

Qmark MUH152 - Control Terminal Board; Control Wiring; Operating Instructions

Default Icon
30 pages
Print Icon
To Next Page IconTo Next Page
To Next Page IconTo Next Page
To Previous Page IconTo Previous Page
To Previous Page IconTo Previous Page
Loading...
The relay (contactor) lead wire “A1” must be moved from the end
terminal of the power terminal block (terminal closest to the con-
tactor or control terminal board) to the “A” terminal of the lower
terminal block (center terminal).
Model MUH158 (Figure 3b) has two three-phase terminal blocks
located adjacent to the relays (contactors). Move only the two
wires marked “C1” and “D1” on each of these two three-phase
terminal blocks to terminal “B”. Do not move or change any other
wires.
9. Electrical Accessories, either kits or factory-installed
options, are shown connected by a dash line on the heater
wiring diagram.
10. 208/240 VOLT HEATER: The heaters are wired for 240V
from factory. When heater is to be connected to 208V sup-
ply, the transformer leads MUST BE interchanged. For units
rated 30/40kW or higher, interchange ORANGE and RED
primary leads. The black colored lead is the COMMON for
the transformer (50VA) provided with the high wattage units.
For lower kW rated heaters, interchange BLACK and RED
primary leads. The WHITE colored lead is the COMMON for
the control transformer provided with these heaters. Always
refer to the wiring diagram on the cover of the heater before
making this reconnection of tranformer primary leads.
Control Wiring
1. Use min. 600 volts, NEC Class 1 insulated wire for all control
circuit wiring.
2. Use a crimp-on type fork terminal on the wire ends that
attach to the control terminal board if more than one connec-
tion is to be made under the terminal screw.
3. On units not
provided with internal contactor (3 & 5 KW),
refer to Figure 4 for wiring diagram.
NOTE: Thermostat and control circuit wiring must be suitable to
handle the full load of the heater (example MUH0581 is rated 24
amps)
4. On units provided with internal contactor (units rated 7 KW
and higher) refer to Figure 5 for wiring diagram. Control
wiring must be rated minimum 18 AWG.
OPERATING
INSTRUCTIONS
1. Heater must be properly installed before operation.
2. Turn power supply to heater “ON” at main switch panel.
3. Where applicable, refer to control accessory instructions
regarding proper operation of any controls or accessories
used with the heater.
LINE VOLTAGE IS PRESENT ON SOME OF THE TERMINALS
ON THE CONTROL TERMINAL BOARD. ALWAYS DISCON-
NECT THE POWER FROM THE HEATER BEFORE MAKING
ANY CONNECTIONS TO THE CONTROL BOARD TO PRE-
VENT ELECTRIC SHOCK HAZARD.
5
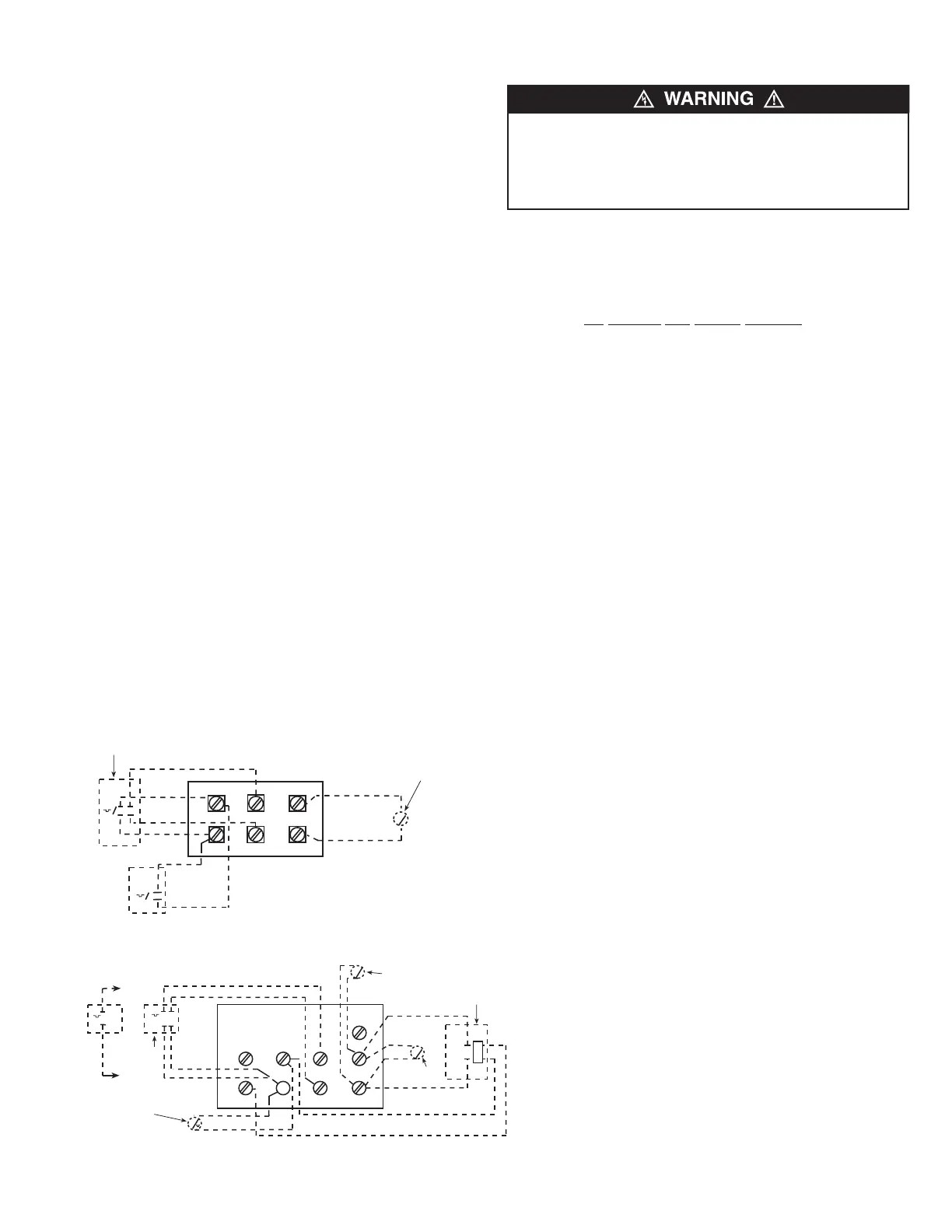
MT-1
MT-2
2-STAGE
INTERNAL
THERMOSTAT
BLACK
RED
RED
BLACK
P2
H2
F 1
F 2
S
REMOTE SUMMER
FAN SWITCH (MRFS-1)
OR SUMMER FAN
SWITCH MCFS (MANUAL)
P1
H1
NOTES:
1. THIS STYLE CONTROL TERMINAL BOARD USED WITH MODELS
MUH0321, MUH0371, MUH0381, MUH0521, MUH0571, AND
MUH0581.
2. WHEN UNIT IS WIRED FOR SINGLE-PHASE, JUMPER H1 TO H2.
IF SINGLE-POLE THERMOSTAT IS USED WITH SINGLE-PHASE
UNIT, CONNECT THERMOSTAT LEADS TO P1 AND H1.
3. EXTERNAL LINE VOLTAGE THERMOSTATS SHOULD BE TREAT-
ED AS SINGLE STAGE ONLY.
T
T
MT-1
MT-2
BL ACK TO W1
RED TO R
2-STAGE
INTERNAL
THERMOSTAT
MHRT HEAT RECOVERY
THERMOSTAT OR
REMOTE FAN
SWITCH (MRFS-2)
BLACK
RED
RED
BLACK
C
RW1
W2
F 2
F 1
G
T R
T
S
S
REMOTE SUMMER FAN
SWITCH (MRFS-1)
FAN RELAY
(FOR MRFS-2 AMD MHRT)
SUMMER
FAN
SWITCH
Figure 5. Control Terminal Board (for Heaters With Contactors)
NOTES:
1. THIS STYLE CONTROL TERMINAL BOARD USED
WITH MODELS EXCEPT MUH0321, MUH0371,
MUH0381, MUH0521, MUH0571, AND MUH0581.
2. REMOVE JUMPER W1 TO W2 WHEN 2-STAGE THER-
MOSTAT IS USED.
3. *ONLY ONE OF THESE ACCESSORIES MAY BE
INSTALLED IN A SINGLE HEATER.
4. EXTERNAL LINE VOLTAGE THERMOSTATS SHOULD
BE TREATED AS SINGLE STAGE ONLY.
Figure 4. Control Terminal Board (for Heaters Without Contactors)

Related product manuals