EasyManua.ls Logo

Quincy Compressor QCS100 - Appendix A - Dimensional Drawings & Technical Data; Qcs100

Quincy Compressor QCS100
40 pages
Print Icon
To Next Page IconTo Next Page
To Next Page IconTo Next Page
To Previous Page IconTo Previous Page
To Previous Page IconTo Previous Page
Loading...
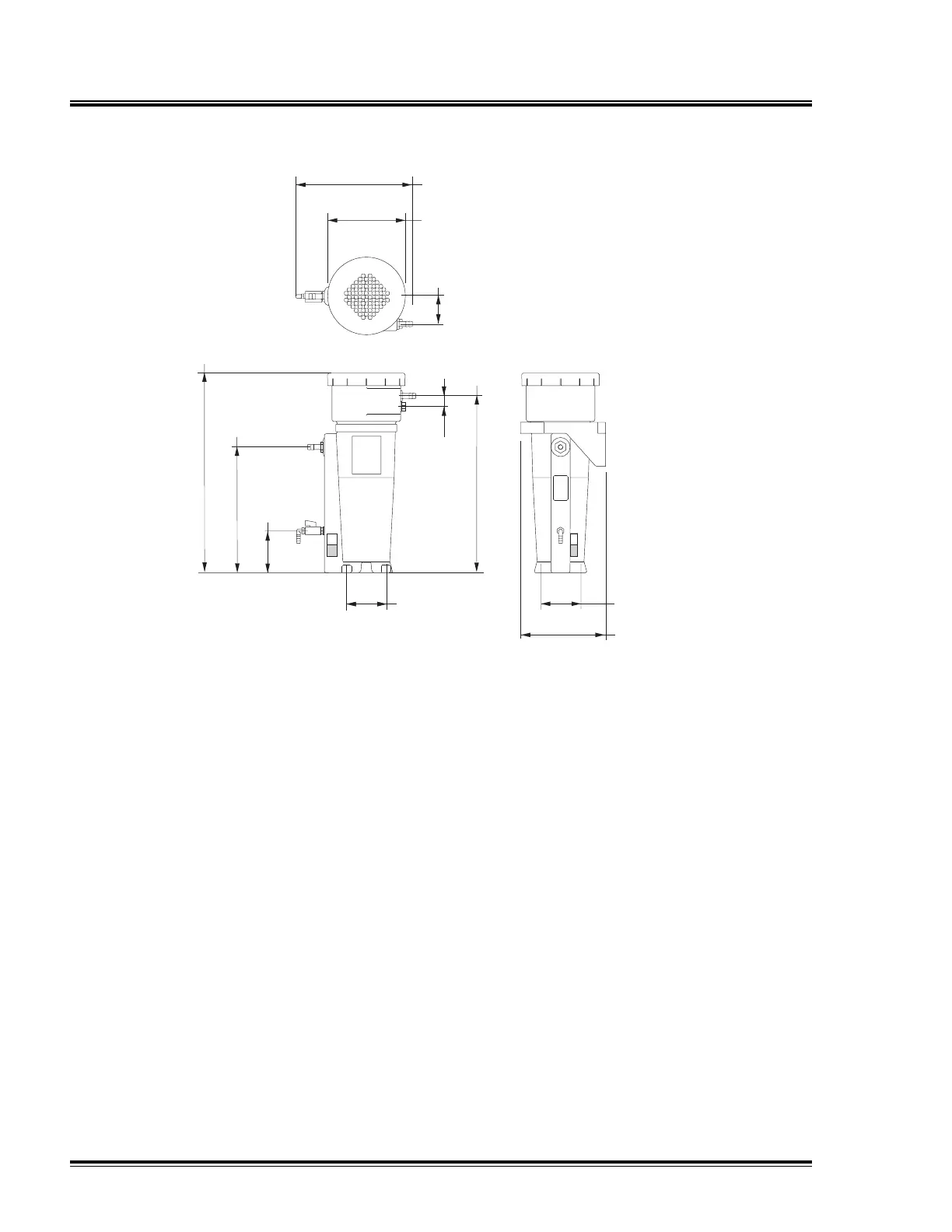
Appendix A - Dimensional Drawings & Technical Data
QCS100
20.8
(528)
13.0
(330)
4.3
(110)
3.9 (100)
18.3
(464)
1.2
(31)
8.7 (222)
3.9 (100)
12.2 (310)
7.9 (200)
2.75
(70)
DIMENSIONS ARE IN INCHES (MILLIMETERS).
26 Quincy Compressor-QCS High Efficiency Emulsion Separators

Related product manuals