EasyManua.ls Logo

Quincy Compressor QOFT 50 - Installation Proposal

Quincy Compressor QOFT 50
84 pages
Print Icon
To Next Page IconTo Next Page
To Next Page IconTo Next Page
To Previous Page IconTo Previous Page
To Previous Page IconTo Previous Page
Loading...
Instruction book
9829 3199 74 45
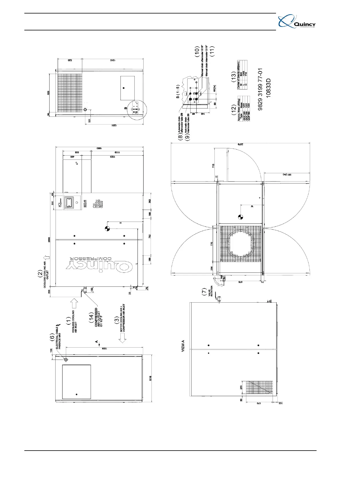
Dimension drawing, QOFT 40 up to QOFT 60 compressor

Related product manuals