EasyManua.ls Logo

Quincy Compressor QOFT 50 - Installation; Dimension Drawings

Quincy Compressor QOFT 50
84 pages
Print Icon
To Next Page IconTo Next Page
To Next Page IconTo Next Page
To Previous Page IconTo Previous Page
To Previous Page IconTo Previous Page
Loading...
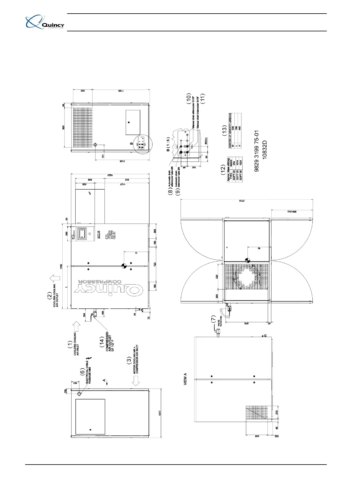
4 Installation
4.1 Dimension drawings
Dimension drawing, QOFT 20 up to QOFT 30 compressor
Instruction book
44 9829 3199 74

Related product manuals