EasyManua.ls Logo

Radionics D7212 - Figure 12: Connecting the D8125 POPEX to the Panel

Default Icon
67 pages
Print Icon
To Next Page IconTo Next Page
To Next Page IconTo Next Page
To Previous Page IconTo Previous Page
To Previous Page IconTo Previous Page
Loading...
D9000/D7000 Series Operation & Installation Manual
Page 27
74-07692-000-C 4/97
GND
AUX
IN
OUT
-++-
LOOP
ON
0654321
DATA
+-
D9127U/T
-++-
LOOP
ON
0654321
DATA
+-
D9127U/T
-++-
LOOP
ON
0654321
DATA
+-
D9127U/T
(-)
(-)
(+)
(+)
POSITIVE (+)
1
2
1
2
1
2
1
2
3
ZONE EXPANSION LOOP
GND
AUX
IN
OUT
-++-
LOOP
ON
0654321
DATA
D8125 POPEX
Module
+
-
D9127U/T
-++-
LOOP
ON
0654321
DATA
+
-
D9127U/T
-++-
LOOP
ON
0654321
DATA
+
-
D9127U/T
(-)
(-)
(+)
(+)
POSITIVE (+)
1
2
1
2
1 2
ZONE EXPANSION LOOP
= D9127 SENSOR LOOP
= D9127 SWITCH BLOCK
= 33K END-OF-LINE RESISTOR
NEGATIVE (-)
ON-BOARD POINTS EXPANSION ZONES
3
3
3
3 3
3
NEGATIVE (-)
D8125 POPEX
Module
VOLTAGE RANGES
Open 3.7 - 5.0VDC
Norm al 2.0 - 3.0VD C
Short 0.0 - 1.3VD C
PERIPHERAL DEVICE WIRING
ZONEX OUT 1
ZONEX IN 1
ZONEX OUT 2
ZONEX IN 2
ZONEX POWER +
ZONEX COMMON
Operation Monitor
Pulses When Normal
Flickers When Ring ing
PROG
CONN
RED
YELLOW
GREEN
BLAC K
17-05823-002
32
POWER +
DATA BUS A
COMMON
Reset Pin
Disable All Except Battery
Charging And Prog ramming
GRN
N.F.P .A.
Style 3.5
Signaling
Line
Ci rcuit s
18
21
16 17 19 20 22
4 Point 5 Point 6 Point 7 Point 8
5900
, Communicator Transmitter
DATA BUS B
29
31
30
24
23
28
27
26
25
23
24
25
26
28
27
Up to 119 POPITs
Up to 119 POPITs
D9412/D9112 only
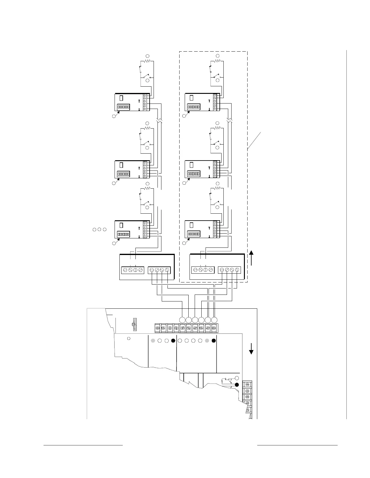
NOTE:
Terminals 23 through 26 are available only on
the D9412 and D9112 Control/Communicators.
Figure 12: Connecting the D8125 POPEX to the Panel
www.PDF-Zoo.com
firealarmresources.com

Table of Contents

Other manuals for Radionics D7212

Related product manuals