EasyManua.ls Logo

RAIS 500 - Mounting Distance (2 G;3 G Non-Combustible)

RAIS 500
36 pages
Print Icon
To Next Page IconTo Next Page
To Next Page IconTo Next Page
To Previous Page IconTo Previous Page
To Previous Page IconTo Previous Page
Loading...
19
English RAIS - manual for RAIS 500
PRELEMINARY
PRELEMINARY
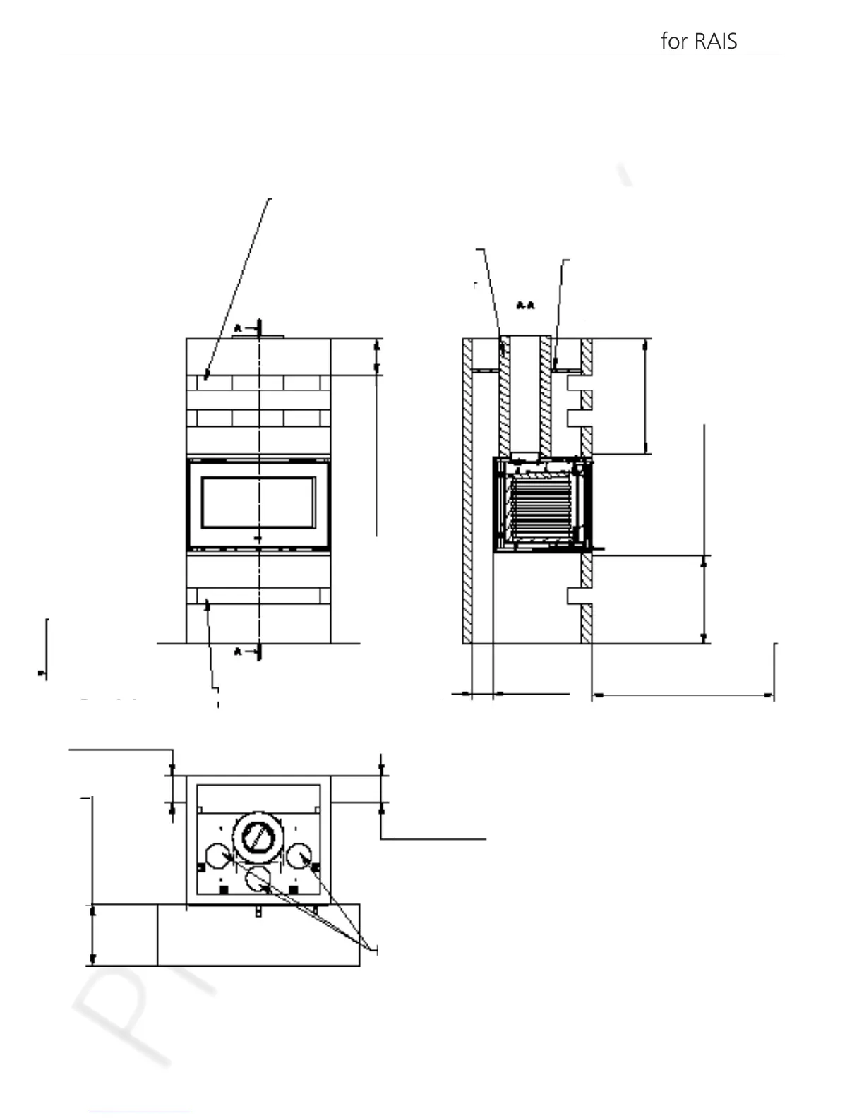
It is recommended to knock out the 3
areas - prepared for heat transfer - out.
Distance to furniture
min. 900 mm
To guide the hot air out of the
gratings, we recommends to
install a non-flammable plate
just above the holes.
Mounting distance - 2G / 3G
non-combustible material:
It is recommended to knock out the 3
areas - prepared for heat transfer - out.
Distance to combustible
material min. 250 mm
Recommended min convection
area above the stove : 800 cm²
(may be distributed)
Distance to furniture
min. 900 mm
Min. 100 mm
Distance
min. 400 mm
Clearance
min. 800 mm
To guide the hot air out of the
gratings, we recommends to
install a non-flammable plate
just above the holes.
Recommended min convection
area below the stove : 500 cm²
(may be distributed)
Min. 300 mm
Distance to combustible
material min. 200 mm
Distance to
combustible
material
min. 200 mm
NB!!
Insulated chimney down
to the smoke connector
(not included)

Related product manuals