EasyManua.ls Logo

RAIS 600 - Page 14

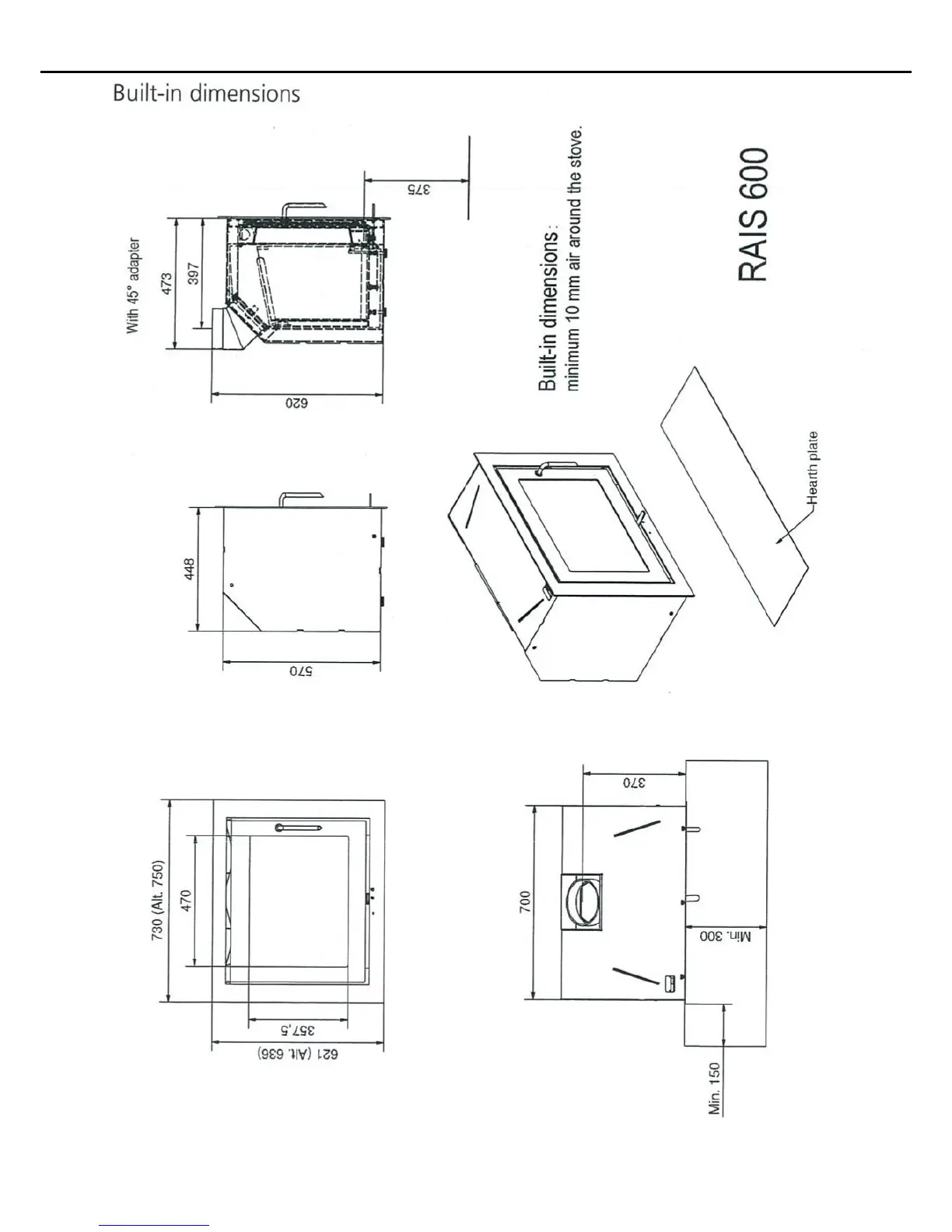
RAIS 600
34 pages
Print Icon
To Next Page IconTo Next Page
To Next Page IconTo Next Page
To Previous Page IconTo Previous Page
To Previous Page IconTo Previous Page
Loading...
14
ENGLISH RAISmanualforRais600&Rais80

Related product manuals