EasyManua.ls Logo

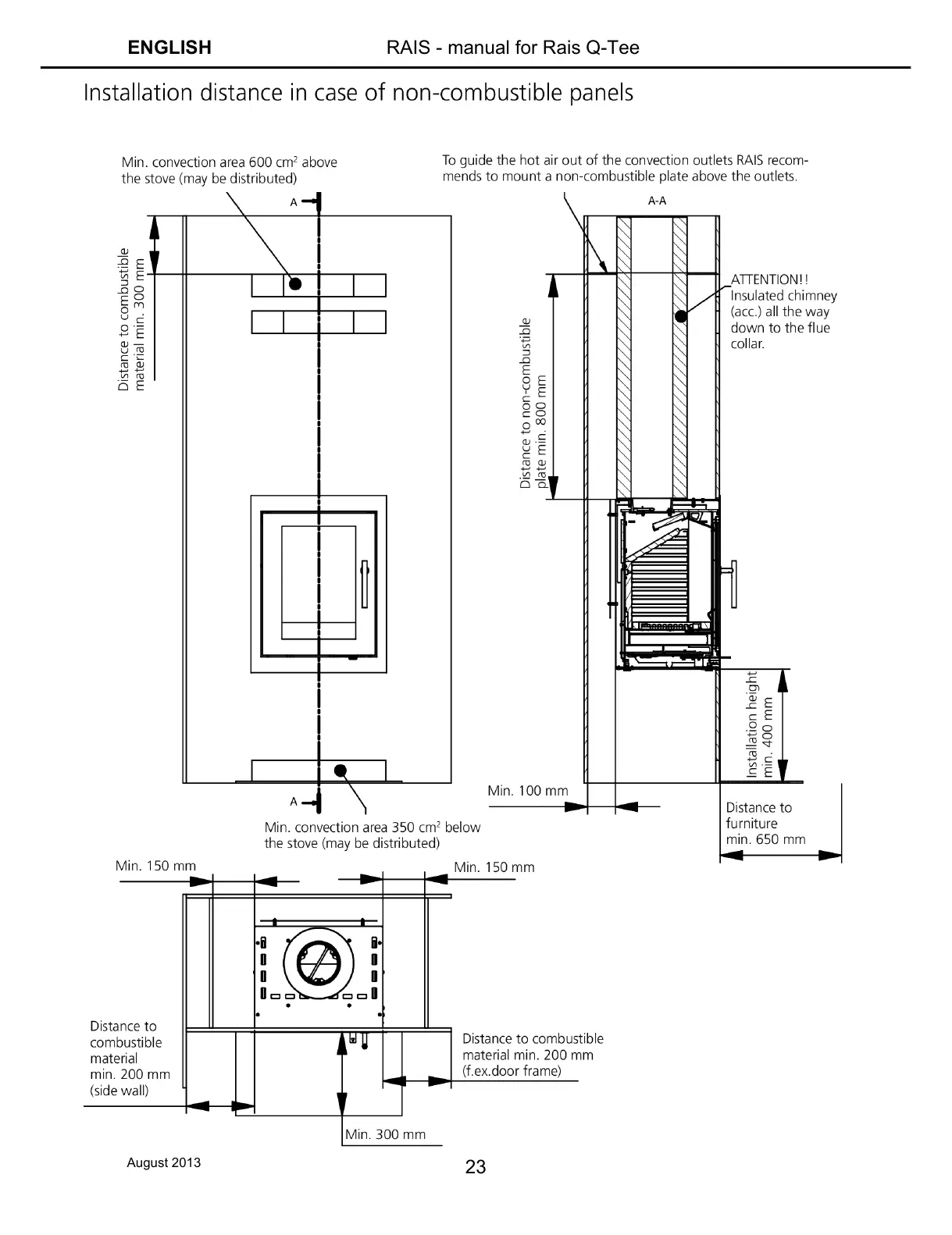
RAIS Q-TEE - Installation Clearances: Non-Combustible Panels

RAIS Q-TEE
48 pages
Print Icon
To Next Page IconTo Next Page
To Next Page IconTo Next Page
To Previous Page IconTo Previous Page
To Previous Page IconTo Previous Page
Loading...
August 2013
ENGLISH RAIS - manual for Rais Q-Tee
23
All manuals and user guides at all-guides.com

Related product manuals