EasyManua.ls Logo

Rangemaster RDW6015FI - Circuit Diagram

Rangemaster RDW6015FI
24 pages
Print Icon
To Next Page IconTo Next Page
To Next Page IconTo Next Page
To Previous Page IconTo Previous Page
To Previous Page IconTo Previous Page
Loading...
20
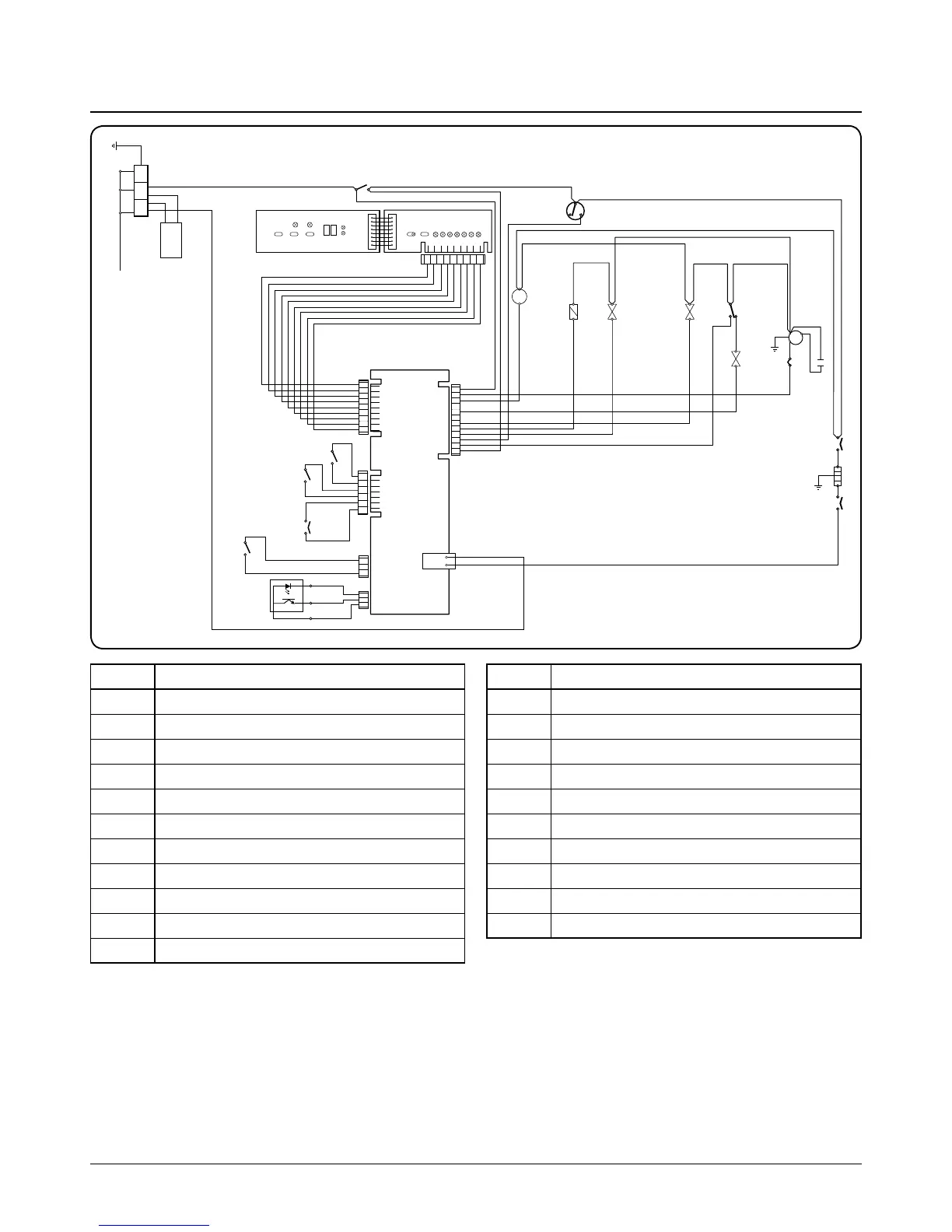
7. Circuit Diagram
ArtNo.800-702 - RDW6015 - circuit diagram
N
L
1
2
3
4
5
6
7
8
9
12
1
1
10
9
8
7
6
5
4
3
2
1
6
5
4
3
2
1
CnP1
CnP3
CnP2
CnL1
1
3
2
220 - 240V 50Hz
Code Description
A Wiring box
B Door switch
C Water level switch
D Display panel
E Drain pump
F Dispenser valve
G Single layer valve
H Softener valve
I Overflow switch
J Inlet valve
K Washing pump
Code Description
L Temperature limiter
M Heating element
N Temperature limiter
O Rinsing agent missing switch
P Salt missing switch
Q Temperature sensor
R Flowmeter
S Turbidity sensor
T Control panel
U Heater relay
DocNo.800-0702 - Circuit diagram - RDW6015 dishwasher

Related product manuals