EasyManua.ls Logo

Ravanson KR-1011 - Электрическая Схема

Ravanson KR-1011
Print Icon
To Next Page IconTo Next Page
To Next Page IconTo Next Page
To Previous Page IconTo Previous Page
To Previous Page IconTo Previous Page
Loading...
21. Ремонт устройства следует поручать исключительно квалифицированному работнику,
использующему оригинальные запчасти.
22. Даже при использовании устройства по назначению и соблюдении всех указаний
относительно безопасности нельзя полностью исключать некоторых остаточных факторов
риска.
23. Перед чисткой, техническим уходом и перед наполнением бака водой, следует вынуть
штепсельную вилку из источника электропитания устройства.
Нельзя прикрывать сеточного корпуса климатора.
ВНИМАНИЕ! Нельзя вкладывать никаких элементов в защитные решетки во время его работы.
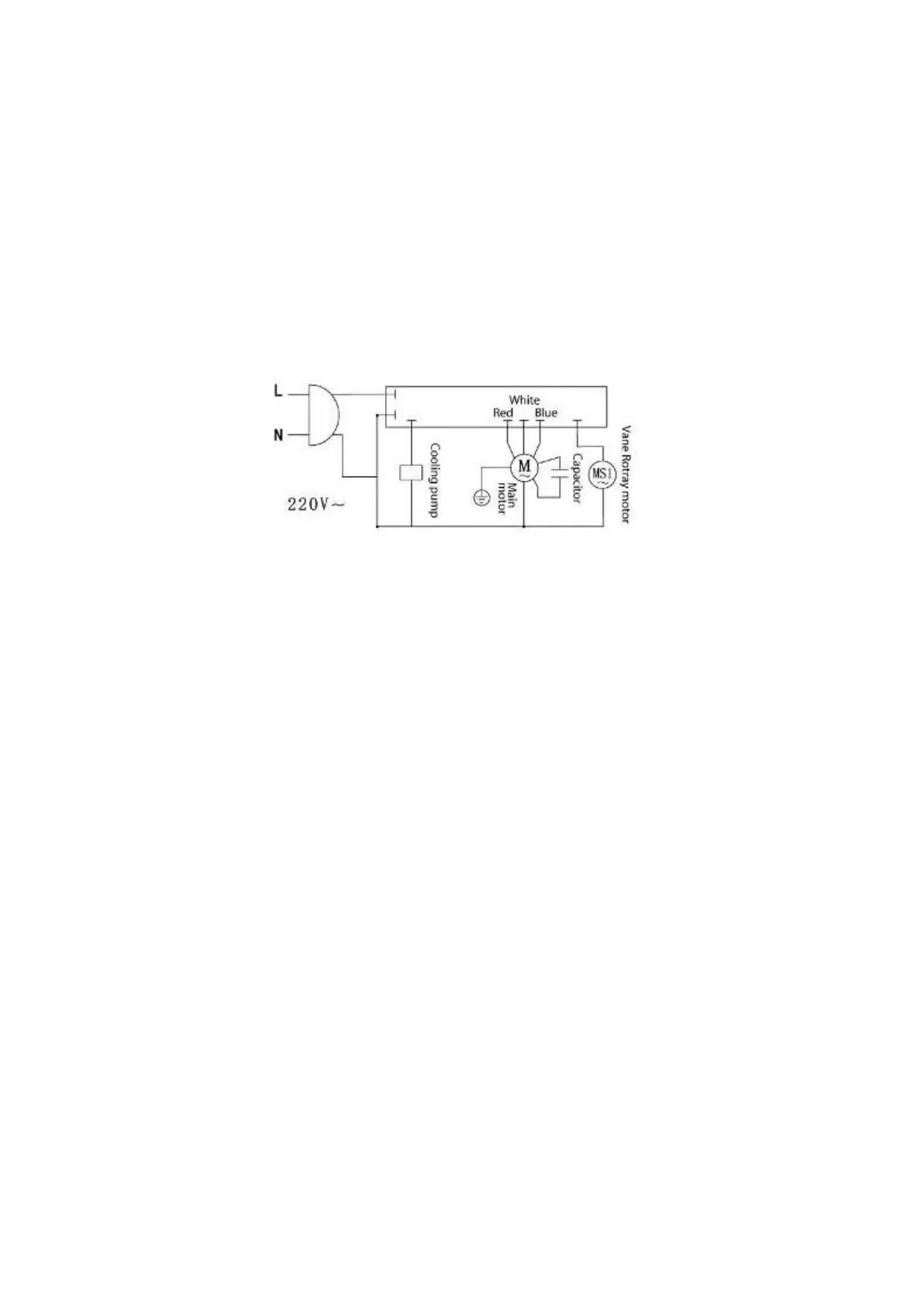
ЭЛЕКТРИЧЕСКАЯ СХЕМА
ПРЕДНАЗНАЧЕНИЕ
Климатор (климатическая установка) предназначен для получения теплового комфорта в помещении
посредством воздушного дутья. Климатор - это устройство, действующее по принципу вентилятора.
Улучшение теплового комфорта достигается при посредстве испарения воды. Охлаждение воздуха при
посредстве испарения является натуральным способом охлаждения, аналогичный эффекту, который
обеспечивает ветер над водяным баком, который охлаждает температуру и имеет релаксационное,
охладительное влияние на людей.
Когда холодная вода проникает в воздух, результатом является возникновение смеси воздуха и частиц
(молекул) воды. Эта перемена требует высшей температуры, следовательно, энергия или скрытая
теплота получается из частиц воды - охлаждающих актуальную температуру воздуха.
Благодаря этой функции пыль, пылинки и другие загрязнения воздуха могут также удаляться,
обеспечивая образование холодного, свежего и чистого воздуха.
Более сильного эффекта охлаждения можно достигнуть посредством применения охладительных
вкладок.
Вкладки следует наполнить водой в количестве, отмеченной на упаковке. Заморозить воду (вкладку) в
домашнем холодильнике, а затем погрузить вкладку в холодную воду, которая находится в баке
устройства.
Разрешается добавление кубиков льда в резервуар для воды в устройстве.
ОБОЗНАЧЕНИЯ
1. Климатор
2.
Ножки, 4 шт.
3
. Контейнер 2шт.
4.
Пульта дистанционного управления (KR-2011)
ВНИМАНИЕ! Охладительные резервуары, доставляемые с устройством, являются пустыми. Следует
наполнить их водой до уровня „MAX” (МАКС.), указанного на резервуаре.

Related product manuals