EasyManua.ls Logo

RCA RACP1206 - Location Selection; Window Slider Kit Installation; Double-Hung Sash Window Installation

RCA RACP1206
13 pages
Print Icon
To Next Page IconTo Next Page
To Next Page IconTo Next Page
To Previous Page IconTo Previous Page
To Previous Page IconTo Previous Page
Loading...
9 10
INSTALLATION INSTRUCTIONS (optional)
INSTALLATION INSTRUCTIONS
Location
Window Slider kit Installation
Note: If the window opening is less than the mentioned
minimum length of the window slider kit, cut that one
with a hole in it short to fit for the window opening. Do
never cut out the hole in window slider kit.
Fig.7
B
A
or
bolt
Window slider kit
bolt
Window
slider kit
or
Horizontal
window
Horizontal
window
B
Horizontal
window
or
Horizontal
window
Window Slider Kit
Minimum:67.5cm(2.22ft).
Maxmum:123cm(4.04ft).
or
Fig.9a
Fig.8
Fig.9
The air conditioner should be placed on a firm
foundation to minimize noise and virbration. For
safe and secure positioning, place the unit on a
smooth, level floor strong enough to support the unit.
The unit has casters to aid placement, but it should
only be rolled on smooth, flat surfaces. Use caution
when rolling on carpet surfaces. Do not attempt to
roll the unit over objects.
The unit must be placed within reach of a properly
rated grounded socket.
Never place any obstacles around the air inlet or
outlet of the unit.
Allow 30cm to 100cm of space from the wall with
window for efficient air-conditioning.
Your window slider kit has been designed to fit most
standard "Vertical" and "horizontal"window
applications, However, it may be necessary for you to
improvise/modify some aspects of the installation
procedures for certain types of window. Please refer
to Fig. 8& Fig.9 for minimum and maximum window
openings.Window slider kit can be fixed with a bolt
(see Fig.9a).
INSTALLATION INSTRUCTIONS (optional)
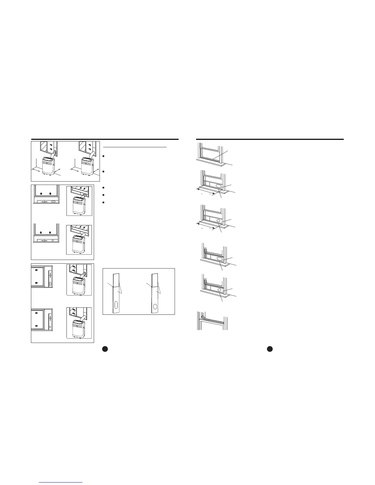
Installation in a double-hung sash
window
1. Cut the foam seal(adhesive type) to the proper
length and attach it to the window stool. Fig.10
2. Attach the window slider kit to the window stool.
Adjust the length of the window slider kit according
to the width of window, shorten the adjustable window
kit if the width of window is less than 26.5 inches.Open
the window sash and place the window slider kit on the
window stool. See Fig.11.
3. Cut the foam seal(adhesive type) to the proper
length and attach it on the top of the window. Shown
as in Fig.12.
4. Close the window sash securely against the
window.
5. Cut the foam seal to an appropriate length and
seal the open gap between the top window sash
and outer window sash. Shown as in Fig.13.
Foam seal A
(adhesive type)
Window kit
Window stool
Foam seal
Fig.10
Fig.11
Fig.12
Fig.13
Window kit
Window stool
Window kit
Window stool
or
Window kit
Window stool
or
A:30cm-100cm
A
B:30cm
26.5 ~ 48.0
Window Slider Kit
Minimum:67.5cm(2.22ft).
Maxmum:123cm(4.04ft).
Window Slider Kit
Minimum:67.5cm(2.22ft).
Maxmum:123cm(4.04ft).
Window Slider Kit
Minimum:67.5cm(2.22ft).
Maxmum:123cm(4.04ft).
26.5 ~ 48.0

Related product manuals