EasyManua.ls Logo

Reliable H Deluge Riser - Installation Measurements

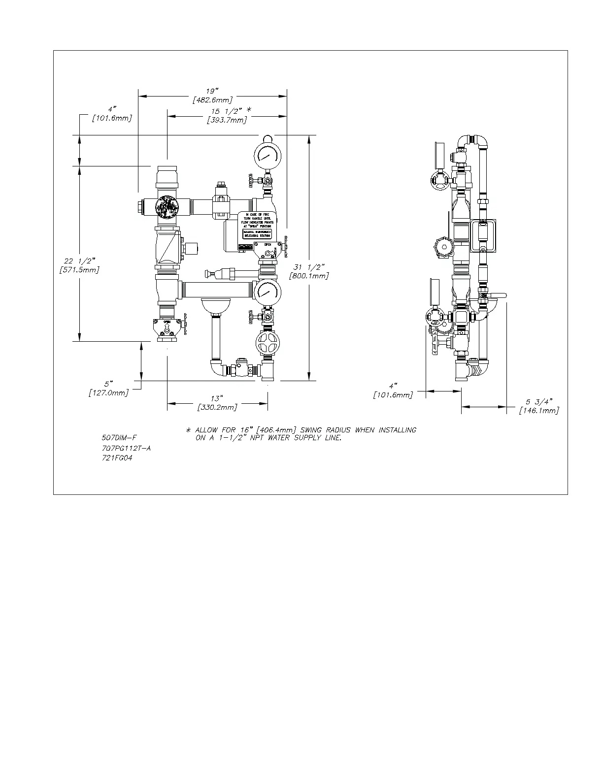
Reliable H Deluge Riser
10 pages
Print Icon
To Next Page IconTo Next Page
To Next Page IconTo Next Page
To Previous Page IconTo Previous Page
To Previous Page IconTo Previous Page
Loading...
9.
Installation Measurements