EasyManua.ls Logo

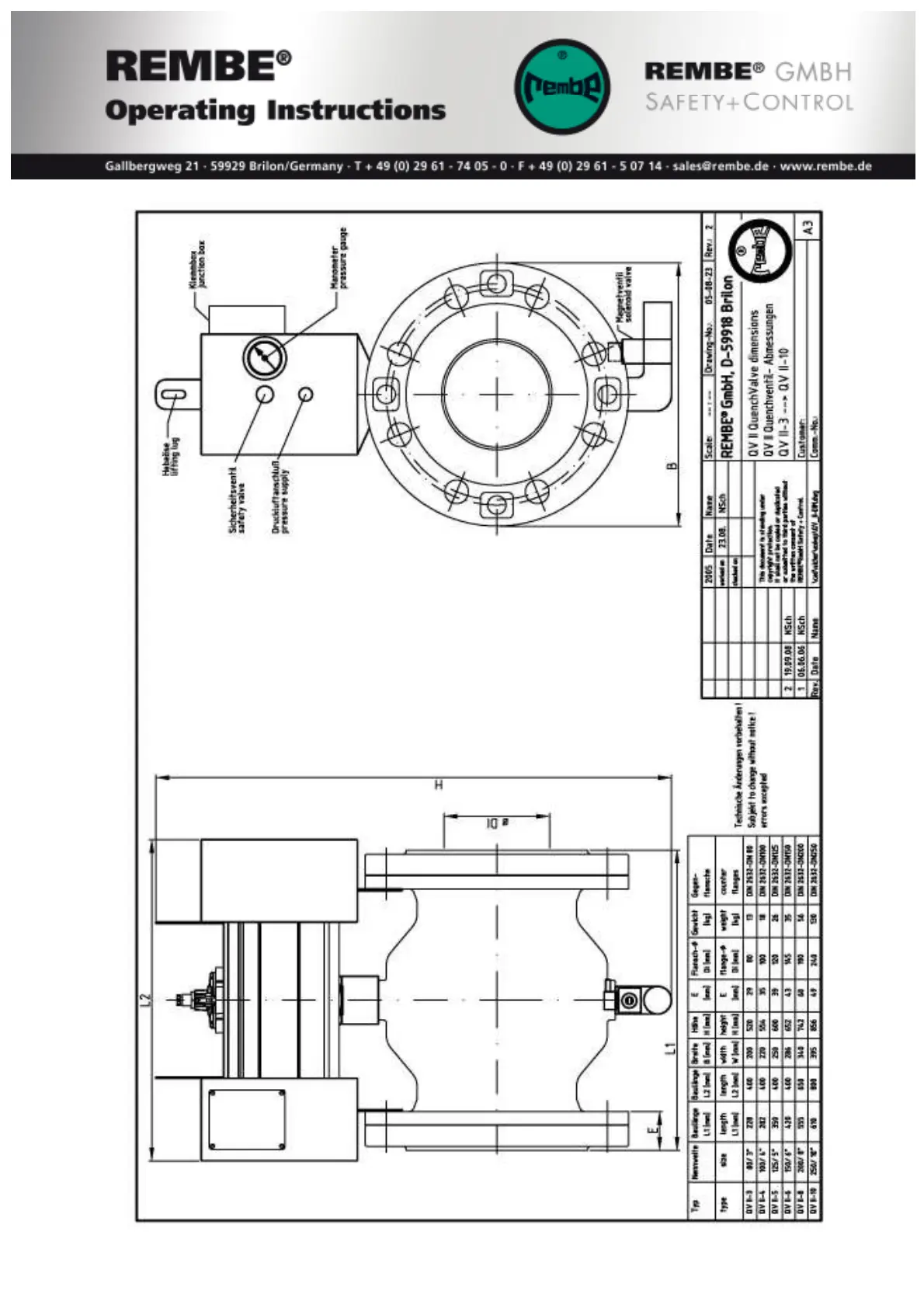
REMBE EXKOP Mini - QV II Quench Valve Dimensions and Specifications

REMBE EXKOP Mini
25 pages
Print Icon
To Next Page IconTo Next Page
To Next Page IconTo Next Page
To Previous Page IconTo Previous Page
To Previous Page IconTo Previous Page
Loading...
page 22 of 25 GBB-EXKOM-08157/3