EasyManua.ls Logo

Renu Electronics WP Web HMI Series - Product Overview; Installation of the Web Hmi Products; Panel Guidelines; Panel Cutout Dimensions

Renu Electronics WP Web HMI Series
22 pages
Print Icon
To Next Page IconTo Next Page
To Next Page IconTo Next Page
To Previous Page IconTo Previous Page
To Previous Page IconTo Previous Page
Loading...
© RENU Electronics Pvt. Ltd. Page 5 of 22
Product Overview
This section of the manual provides an overview of Web HMI series products, its front and back view, installation
details, dimensional details, mounting method and details.
Installation of the Web HMI products
Web HMI series products are designed for front panel mounting. Before installing the products, user should
review the panel guidelines, panel cutout dimensions, product dimensions and minimum clearances.
Panel Guidelines
The panel must be at least 2mm (12 gauge), in order to provide the required support and proper sealing against
water and dust. The panel surface must be flat, devoid of any imperfection, to maintain adequate seal and IP
rating. The maximum panel thickness on which this HMI can be mounted is 6mm (±0.2mm).
Panel Cutout Dimensions
Model
Height (mm)
Width (mm)
80
111
127
175
178
256
ATTENTION
ATTENTION: Panel cutout
Before cutting out the panel, disconnect all electrical power from the panel.
Make sure that the area surrounding the panel cutout is clear.
Make sure that metal cutting chips do not enter any other component, already
installed in the panel.
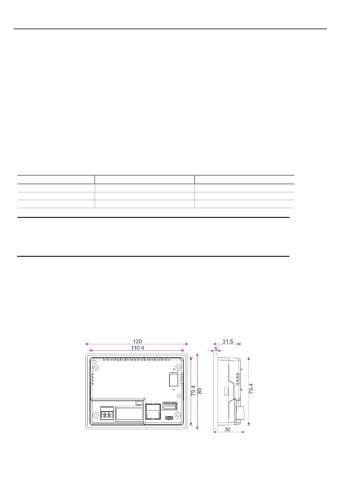
Product Dimensions
This section of the manual provides dimensional details of Web HMI series products. All the dimensions shown
below are measured in mm.
WP6043TN