EasyManua.ls Logo

REXROTH TS2 plus - Page 353

REXROTH TS2 plus
429 pages
Print Icon
To Next Page IconTo Next Page
To Next Page IconTo Next Page
To Previous Page IconTo Previous Page
To Previous Page IconTo Previous Page
Loading...
1
2
3
4
5
6
7
8
9
10
11
12
13
14
15
16
17
Bosch Rexroth AGTS 2plus 4.1 11–65
1
3
2
4
L
Q
b
L
+ 15
b
L
10
180
100
21
b
L
- 30
b
L
- 75
b
L
+ 12
b
Q
+ 60
b
Q
+ 48
b
Q
+ 36
b
Q
00116040.eps
D 6
480 x 480 mm
1 3
00116547.eps
2
D 6D 6
4 2
5 1 3
00116548.eps
 5-18
3 842 998 113
Technische Daten · Technical Data · Données techniques
3 842 531 138 (2011.04)
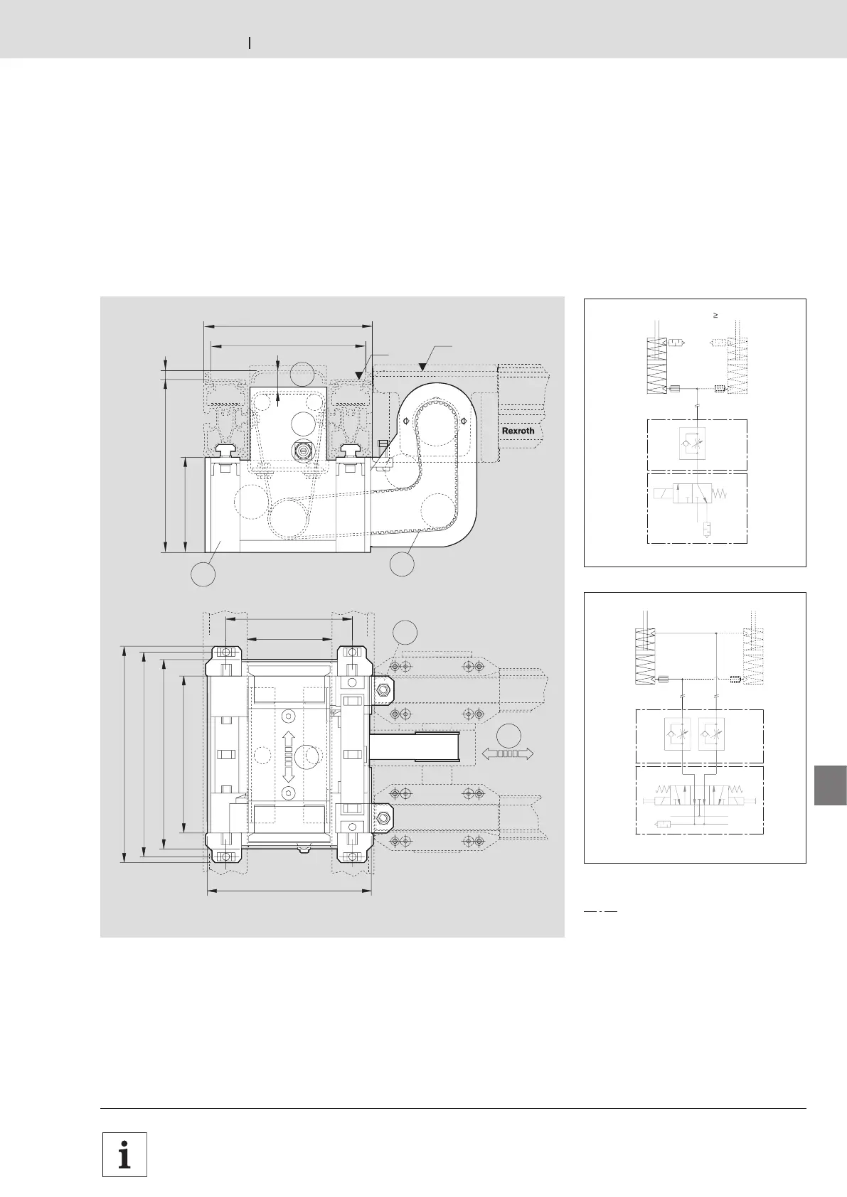
Hub-Quereinheit HQ 2/O
HQ 2/O lift transverse unit
Unité de levée transversale HQ 2/O
L Förderrichtung Längsstrecke
Q Förderrichtung Querstrecke
1 Hub
2 Schutzkasten
3 Zahnriemen für Antrieb
4 Befestigung für BS 2/T
L Transport direction of longitudinal
conveyor section
Q Transport direction of transverse
conveyor section
1 Stroke
2 Housing element
3 Toothed drive belt
4 Attachment for BS 2/T
L Sens de transport de la section
longitudinale
Q Sens de transport de la section
transversale
1 Course
2 Carter
3 Courroie dentée d’entraînement
4 Fixation pour BS 2/T
nicht im Lieferumfang
not included in scope of delivery
non compris dans la fourniture