EasyManua.ls Logo

REXROTH TS2 plus - Page 354

REXROTH TS2 plus
429 pages
Print Icon
To Next Page IconTo Next Page
To Next Page IconTo Next Page
To Previous Page IconTo Previous Page
To Previous Page IconTo Previous Page
Loading...
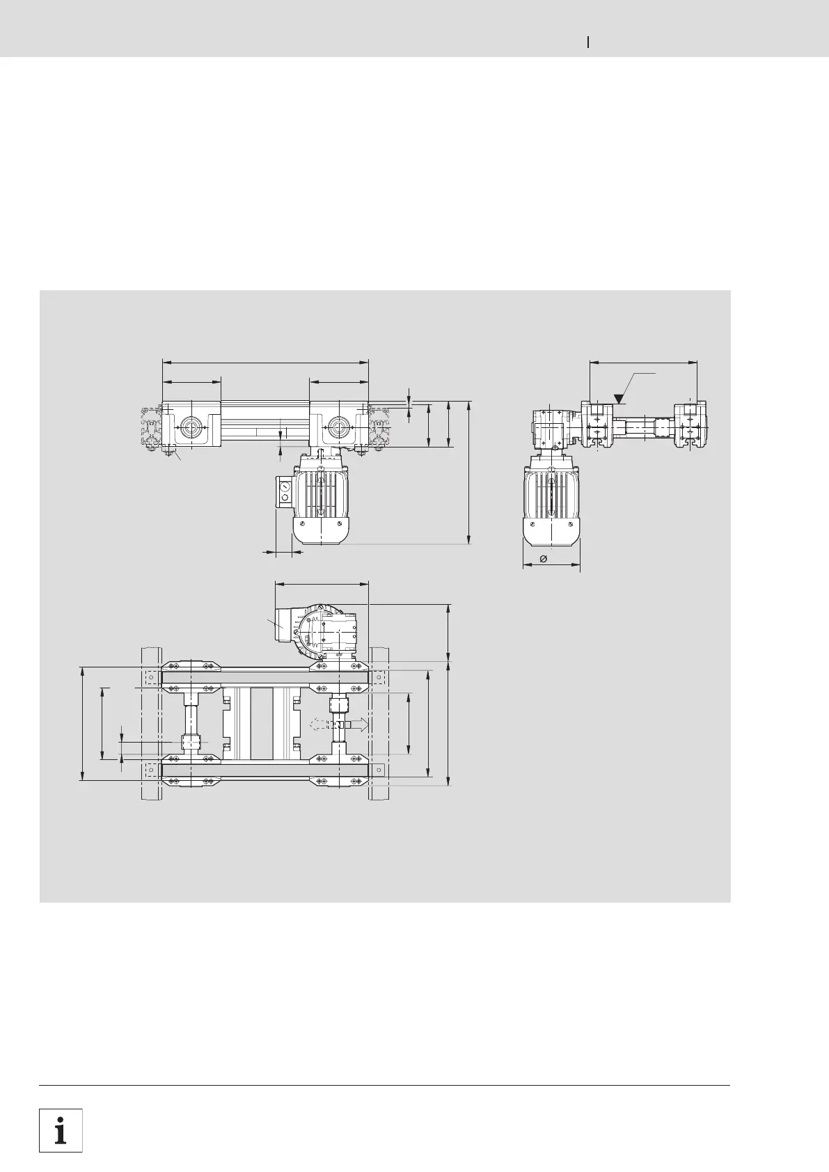
Bosch Rexroth AG TS 2plus 4.111–66
 5-22
b
l
130130
205
MA = L
3842525110
10
95
b-75
b-100
b+40 130
b
26 (UB=1)
46,5 (UB=2)
b+40
102
330
15
00116829.eps
45
123
3 842 999 722
BS 2/T
Technische Daten · Technical Data · Données techniques
3 842 531 138 (2011.04)
Bandstrecke BS 2/T
BS 2/T belt section
Section a bande BS 2/T