EasyManua.ls Logo

REXROTH TS2 plus - Page 359

REXROTH TS2 plus
429 pages
Print Icon
To Next Page IconTo Next Page
To Next Page IconTo Next Page
To Previous Page IconTo Previous Page
To Previous Page IconTo Previous Page
Loading...
1
2
3
4
5
6
7
8
9
10
11
12
13
14
15
16
17
Bosch Rexroth AGTS 2plus 4.1 11–71
b
L
b
Q
b
Q
-242 3058,5
b
Q
+40
b
L
-75
b
L
-275
142
24 272
00116039.eps
1
00116766.eps
1
+10
-13
1 35
2
D 6
D 6D 6 D 6D 6
4
00116552.eps
 5-34
3 842 999 810
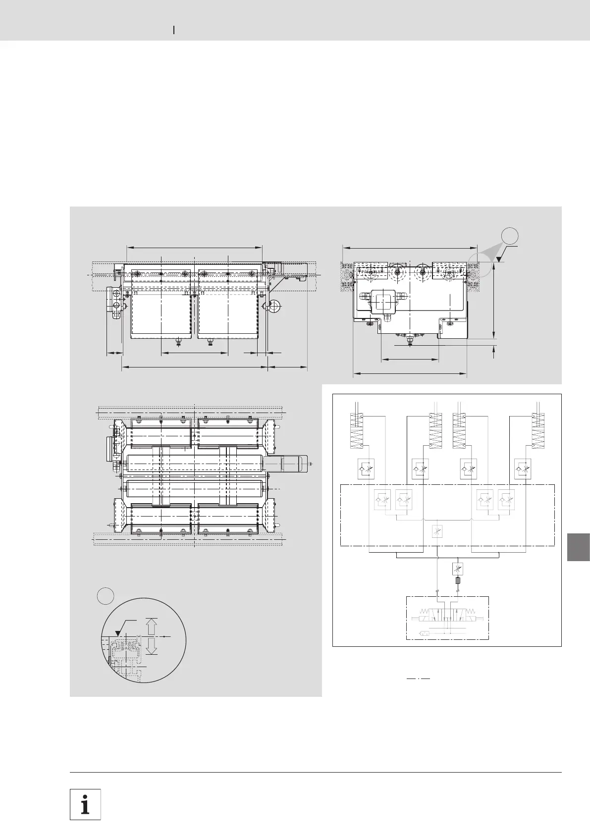
Technische Daten · Technical Data · Données techniques
3 842 531 138 (2011.04)
Hub-Quereinheit HQ 2/H
HQ 2/H lift transverse unit
Unité de levée transversale HQ 2/H
L Förderrichtung Längsstrecke
Q Förderrichtung Querstrecke
L Transport direction of longitudinal
conveyor section
Q Transport direction of transverse
conveyor section
L Sens de transport de la section
longitudinale
Q Sens de transport de la section
transversale
nicht im Lieferumfang
not included in scope of delivery
non compris dans la fourniture