EasyManua.ls Logo

REXROTH TS2 plus - Page 380

REXROTH TS2 plus
429 pages
Print Icon
To Next Page IconTo Next Page
To Next Page IconTo Next Page
To Previous Page IconTo Previous Page
To Previous Page IconTo Previous Page
Loading...
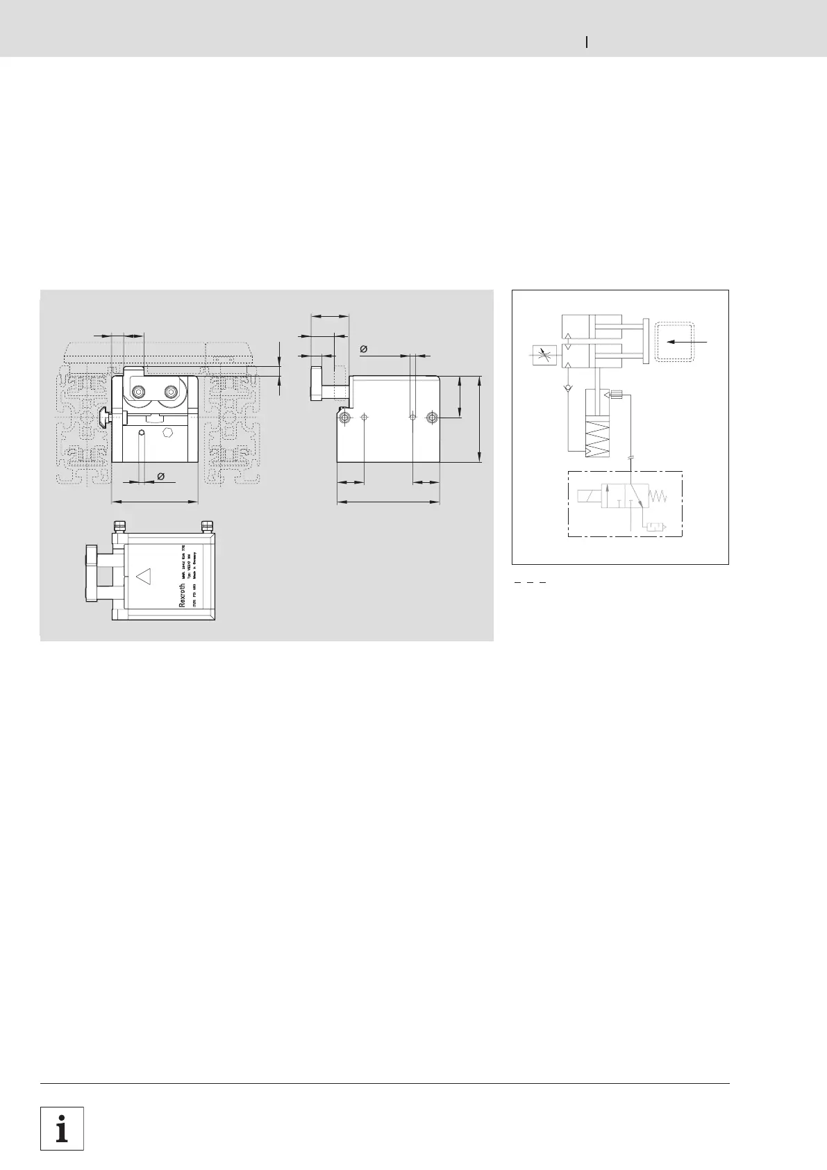
Bosch Rexroth AG TS 2plus 4.111–92
 8-14
00125250.eps
6
80
1911
8,5
38,5
80
25 25
95
4,8 (4x)10
30
20
VE 2/D-150
1 3
2
00126825.eps
D 6
Technische Daten · Technical Data · Données techniques
3 842 531 138 (2011.04)
Gedämpfter Vereinzeler VE 2/D-…
VE 2/D-… dampened stop gate
Séparateur amorti VE 2/D-…
nicht im Lieferumfang
not included in scope of delivery
non compris dans la fourniture
*) Hub
*) Stroke
*) Levée