EasyManua.ls Logo

Reznor UBZ - Controls; Pressure Switch

Reznor UBZ
48 pages
Print Icon
To Next Page IconTo Next Page
To Next Page IconTo Next Page
To Previous Page IconTo Previous Page
To Previous Page IconTo Previous Page
Loading...
23
I-UBX-UBZ-UDX-UDZ (03-21) 1034344-0
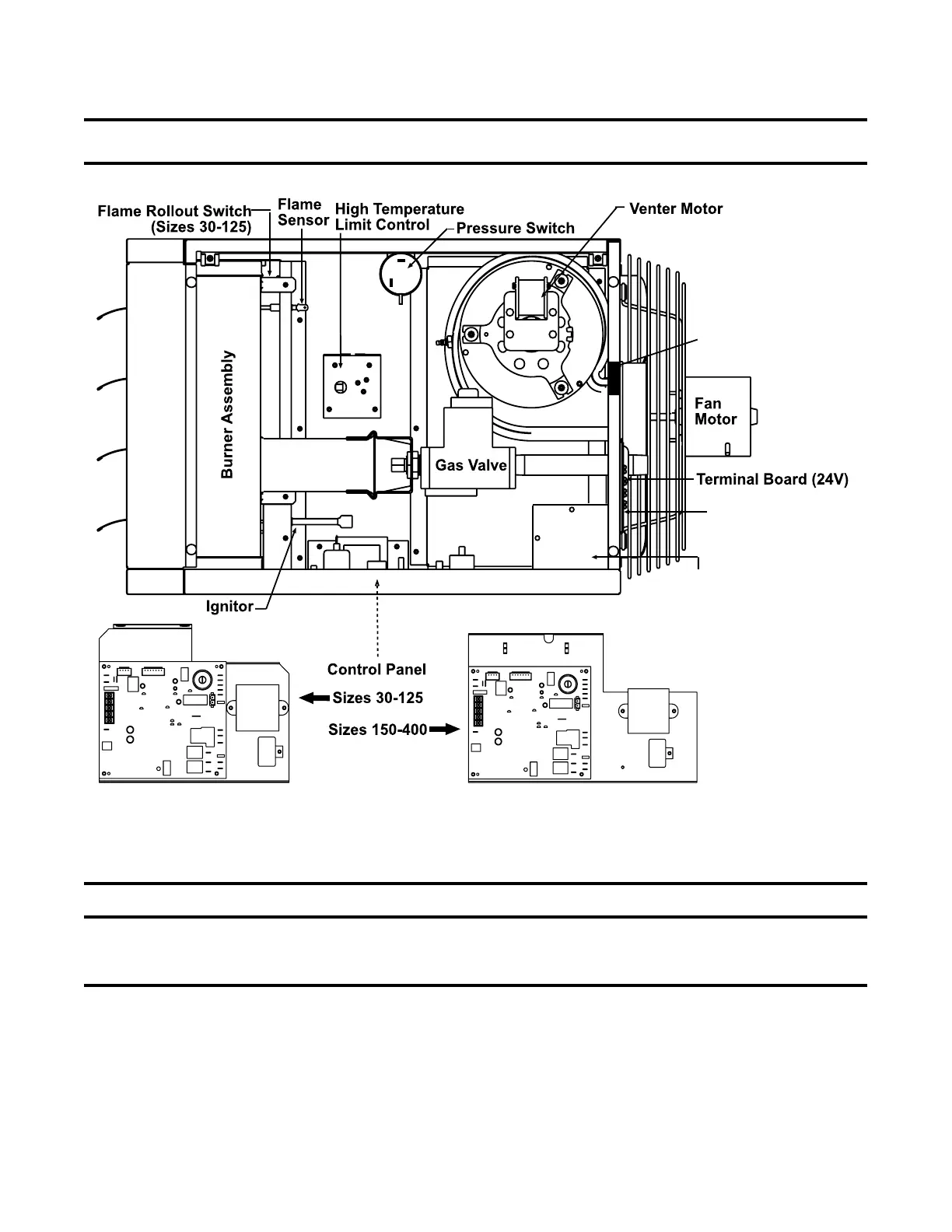
CONTROLS
NOTE: Refer to the Troubleshooting section for probable causes and reset instructions for the
following controls.
Locations for the following controls are shown in Figure 12.
Figure 12. Component Locations (Typical)
Pressure Switch
⚠ DANGER ⚠
Safe operation of this unit requires proper venting flow. NEVER bypass the pressure switch or
attempt to operate the unit without the venter running and the proper flow in the vent system.
Hazardous conditions could result.
The pressure (combustion air proving) switch (see Figure 12 for location) is a pressure-sensitive switch that
monitors air pressure to ensure that proper combustion airflow is available.
On UBX and UDX models, the pressure switch is a single-pole/normally-open device that closes when a negative
pressure is sensed in the venter housing. On UDZ and UDZ models, the pressure switch senses the differential
pressure between the negative pressure in the venter housing and the pressure in the cabinet.
At startup when the heater is cold, the sensing pressure is at the most negative level, and as the heater and flue
system warm up, the sensing pressure becomes less negative. After the system has reached equilibrium (about
20 minutes), the sensing pressure levels off.
Electric Box
Disconnect Switch
Interlock Door Switch
Circuit Board
Circuit Board

Table of Contents

Other manuals for Reznor UBZ

Related product manuals