EasyManua.ls Logo

RIB S1 - Page 39

RIB S1
Print Icon
To Next Page IconTo Next Page
To Next Page IconTo Next Page
To Previous Page IconTo Previous Page
To Previous Page IconTo Previous Page
Loading...
39
39
EE
SS
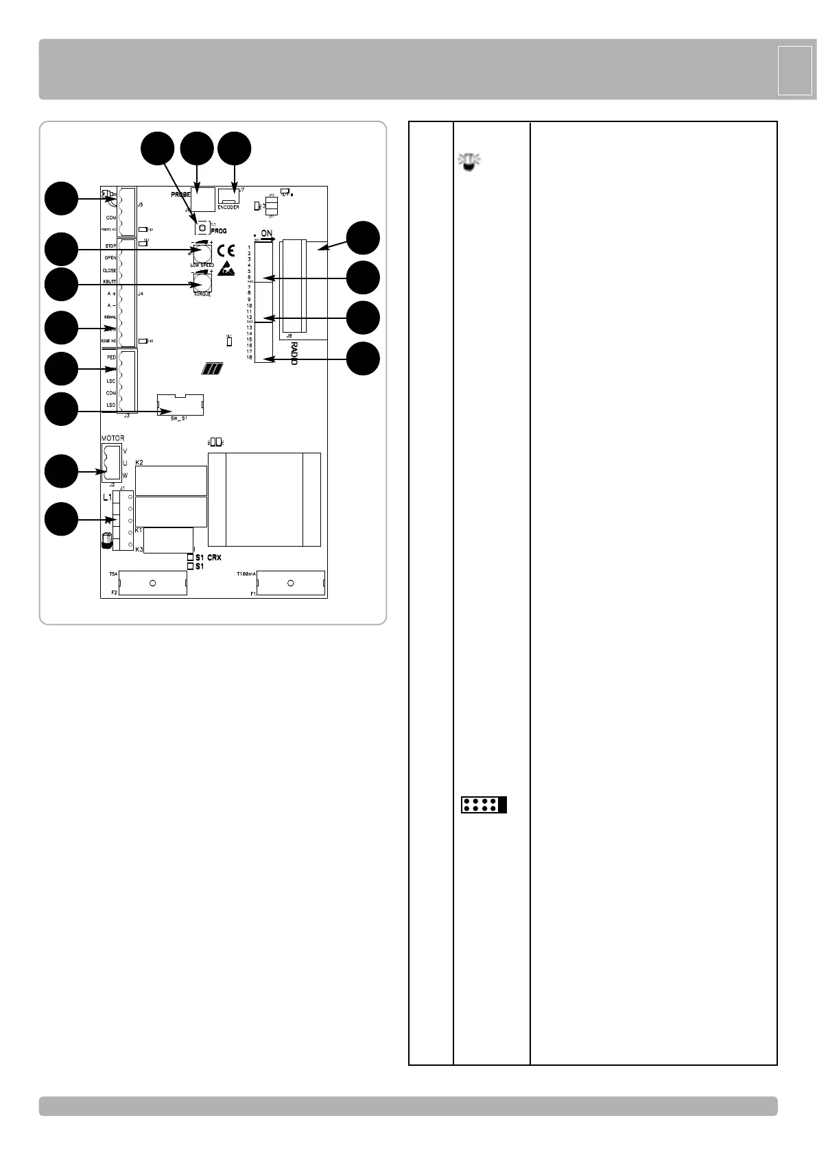
A - CONEXIÓN
ALIMENTACIÓN 230 VAC 50/60 HZ (120V/60HZ
BAJO SOLICITUD)
INTERMITENTE (MÁX 40 W)
CONEXIÓN COMÚN DEL MOTOR
CONEXIÓN INVERSORES Y CONDENSADOR DEL
MOTOR
CONTACTO MANDO DE APERTURA PEATONAL
(NA)
POSITIVO PARA ALIMENTACIÓN AUTOTEST
COSTA A 24 VDC
CONTACTO FINAL DE CARRERA QUE DETIENE
EL CIERRE DEL MOTOR
COMÚN DE LOS CONTACTOS
CONTACTO FINAL DE CARRERA QUE DETIENE
LA APERTURA DEL MOTOR
CONTACTO DE STOP
CONTACTO DE APERTURA
CONTACTO DE CIERRE
CONTACTO DE IMPULSO ÚNICO NA
POSITIVO ALIMENTACIÓN ACCESORIOS A 24 VDC
NEGATIVO ALIMENTACIÓN ACCESORIOS A 24 VDC
INDICADOR LUMINOSO CANCELA ABIERTA 24 VDC
COMÚN DE LOS CONTACTOS
CONTACTO COSTAS EN APERTURA Y CIERRE
ANTENA DE RADIO
COMÚN DE LOS CONTACTOS
CONTACTO FOROCÉLULAS
CONECTOR PARA CONEXIÓN SONDA
CALEFACTOR (Cód. ACG4665)
CONECTOR PARA CONEXIÓN ENCODER (SOLO
PARA K PLUS)
CONECTOR PARA RADIO RECEPTOR EXTERNO
24 VDC
PULSADOR PARA PROGRAMACIÓN
REGULADOR ELECRÓNICO DE VELOCIDAD
LENTA EN ACERCAMIENTO A DIP 7 ON (VÉASE
TABLA 1)
REGULADOR ELECTRÓNICO DE FUERZA
¡NO TOCAR EL PUENTE!
¡SI ES REMOVIDO EL OPERADOR NO
FUNCIONA!
Dip swich de gestión
J1
J2
J3
J4
J5
J6
J7
J8
S3
TR1
TR2
SW S1
SW1
SW2
SW3
L1 - N
U
V-W
PED. BUTT.
A+ TEST
LSC
COM
LSO
STOP
OPEN
CLOSE
K. BUTT.
A+
A-
SIGNAL
COM
EDGE NC
AERIAL
COM
PHOTO NC
PROBE
ENCODER
RADIO
PROG.
LOW SPEED
TORQUE
SW S1
J5
J7J6S3
J8
SW1
SW2
SW3
J4
J3
J2
J1
TR1
TR2
SW S1

Related product manuals