EasyManua.ls Logo

ricoo S2644 - Step 5: Attaching Display to Mount; For Curved Back Displays; For Flat Back Displays; Step 6: Hanging Display to Wall Plate

ricoo S2644
2 pages
Print Icon
To Previous Page IconTo Previous Page
To Previous Page IconTo Previous Page
Loading...
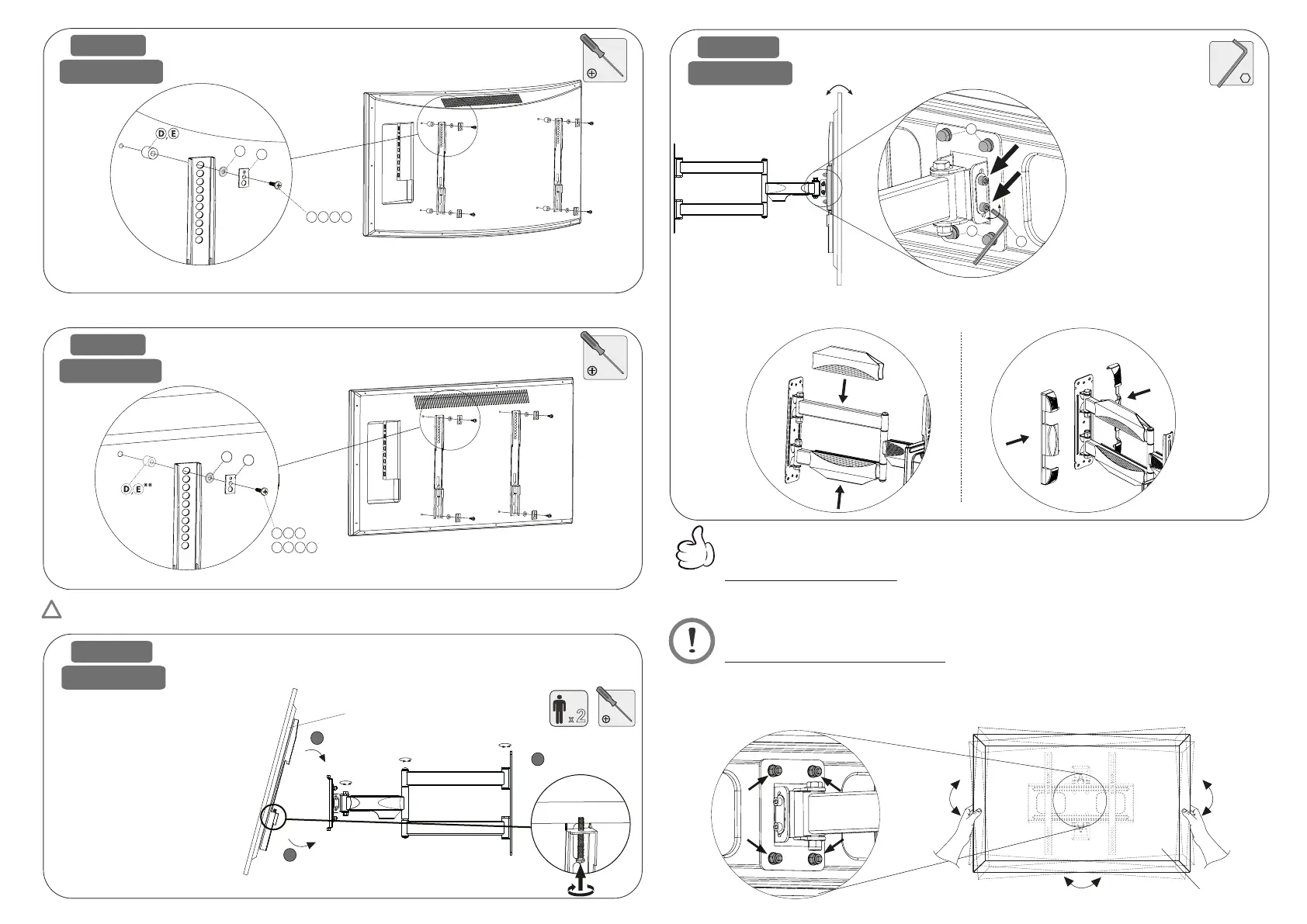
SCHRITT 5 A
STEP 5 A
For displays with a curved back
Für Bildschirme mit gewölbter Rückseite
180°
STE P 6
Locking
Fixierung
Display
Bildschirm
S C H R I T T 6
Done. Alignment options after installation (optional)
Fertig. Ausrichtung nach der Montage (optional)
SCHRITT 5 B
STEP 5 B
For displays with a flat back
Für Bildschirme mit flacher Rückseite
1
2
K
L
M
N
, , ,
*
* Use the matching screws and spacers for your display.
* Benutzen Sie die für Ihren Bildschirm passende Schrauben und Abstandshalter.
Hanging display to wall plate
Aufhängung des Bildschirmes an die Wandhalterung
H
I
J
, ,
*/**
K L
M
N
, , ,
If the display is skewed after installation: This Wall Bracket has a rotation function of the front panel. Therefore the screen is turnable
+/-6° horizontally / vertically. This has the advantage that you can align horizontally the screen at any time. With this feature you can align
the screen with your hands in a horizontal or in another desired position when swinging out or folding of the bracket.
If the setting of the rotation function is too strong or free-moving: Thus you can regulate/control this by loosening or tightening
the shown screws (screws in the middle of front panel).
Falls der Bildschirm nach der Montage schief hängt: Diese Wandhalterung besitzt eine Drehfunktion der Frontplatte. Somit ist der
Bildschirm in Horizontaler / Waagerechten um +/-6° drehbar. Dies hat den Vorteil, dass Sie den Bildschirm jederzeit waagerecht gerade
stellen können. Mit dieser Funktion richten Sie Ihren Bildschirm beim Ausziehen oder Einklappen der Halterung gleichzeitig mit den Händen
in eine waagerechte oder Ihrem Wunsch entsprechende Position aus.
Sollte die Einstellung der Drehfunktion für Sie zu schwer- oder leichtgängig sein: So können Sie dies durchs Lockern oder
Zuziehen der gezeigten Schrauben regulieren (Schrauben in der Mitte der Frontplatte).
3
Display back
Bildschirm Rückseite
Display back
Bildschirm Rückseite
Irrtümer und Tippfehler vorbehalten. / Errors and Misprints are excepted.
STE P 7
S C H R I T T 7
Adjusting the tilting angle
Einstellung des Neigungswinkels
The tilt adjustment can be taken if the
screws are untight on the admission of the
front plate. After adjusting the inclination
desired you have to set tight the screws.
Die Neigungswinkelverstellung erfolgt
durch Lockerung der Fixierungsschrauben
an der Frontplattenaufnahme. Nach
Einstellen des gewünschten Neigungswin-
kels, ziehen Sie die Fixierungsschrauben
wieder fest an.
-/+15°
Display
Bildschirm
Rear view of front plate
Rückansicht der Frontplatte
+/- 6°
Hang the TV along with mounting rails to
the front plate of the bracket. Hang the TV
along with mounting rails to the front plate
of the bracket. After that, turn the screws
on the bottom of the mounting rails.
Hängen Sie den TV samt Montage-schie-
nen an die Frontplatte der Halterung ein.
Drehen Sie danach die unteren Schrauben
an den Montageschienen ein.
180°
180°
Fitting plactic covers
Montage der Plastikabdeckungen
P
Q
Q
* Use the matching screws and spacers for your display. Spacers „D“ and „E“ can be combined.
* Benutzen Sie die für Ihren Bildschirm passende Schrauben und Abstandshalter. Abstandshalter „D“ und „E“ können kombiniert werden.
** Wenn die Schrauben "K, L, M, N" zu lang sind, verwenden Sie die Plastikzylinder / Abstandshalter "D" oder "E" (wie im Schritt 5 A).
Abstandshalter "D" und "E" können kombiniert werden.
** If the screws "K, L, M, N" are too long, use the plastic spacers "D" or "E" (like in Step 5 A). Spacers "D“ and "E" can be combined.
!
*
F
G
F
G
F
G

Other manuals for ricoo S2644

Related product manuals