EasyManua.ls Logo

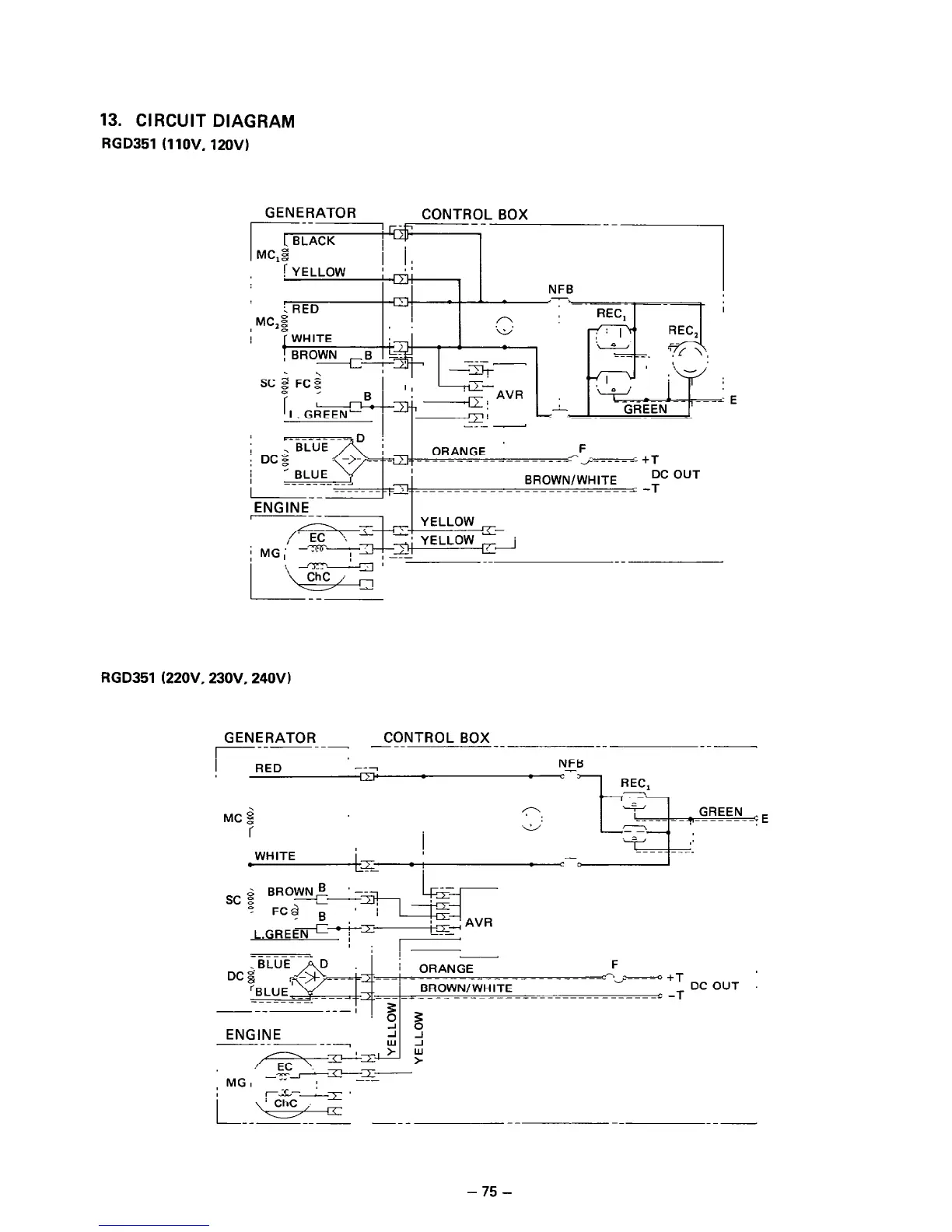
Robin RGD351 - CIRCUIT DIAGRAM

Robin RGD351
82 pages
Print Icon
To Next Page IconTo Next Page
To Next Page IconTo Next Page
To Previous Page IconTo Previous Page
To Previous Page IconTo Previous Page
Loading...

Related product manuals