EasyManua.ls Logo

Samsung AR18TXEAAWKNEU - Page 59

Samsung AR18TXEAAWKNEU
318 pages
Print Icon
To Next Page IconTo Next Page
To Next Page IconTo Next Page
To Previous Page IconTo Previous Page
To Previous Page IconTo Previous Page
Loading...
59
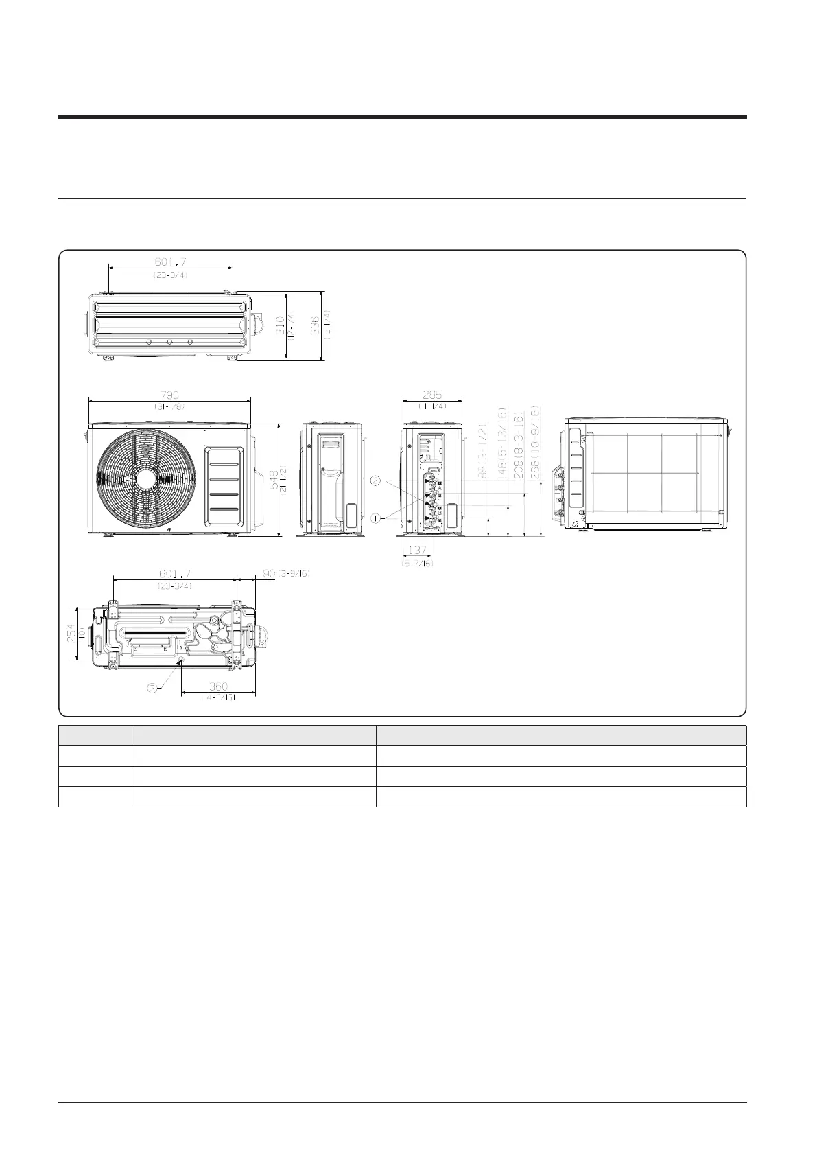
5. Dimensional Drawing5. Dimensional Drawing
5-1. Outdoor units
 AJ040TXJ2KG/EU, AJ050TXJ2KG/EU
Unit : mm [inches]
Rear View
NO Name Description
1 Refrigerant gas pipe 
2 Refrigerant liquid pipe 
3 Drain hole Connection with the provided drain plug.

Other manuals for Samsung AR18TXEAAWKNEU

Related product manuals