EasyManua.ls Logo

Samsung AR18TXEAAWKNEU - Page 69

Samsung AR18TXEAAWKNEU
318 pages
Print Icon
To Next Page IconTo Next Page
To Next Page IconTo Next Page
To Previous Page IconTo Previous Page
To Previous Page IconTo Previous Page
Loading...
69
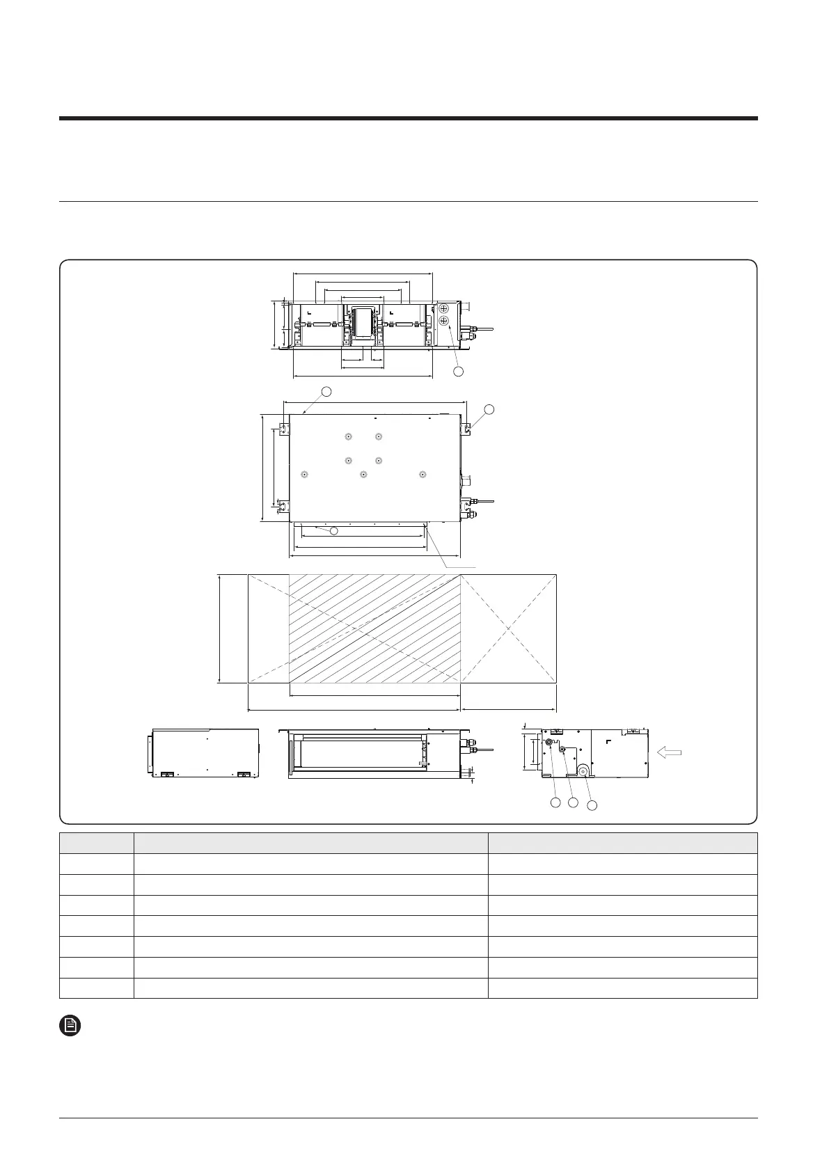
5. Dimensional Drawing
5-2. Indoor unit
6
Home duct : AJ026TNLDEG/EU, AJ035TNLDEG/EU
Units : mm [inches]
566
566
173
86 52
382
312
173
17 01 0
91 9
.7 8
746
440
316
4-28
542
5x100=500
700
16-Ø3.2
7
6
5
700
800 500
23.2
3
1
2
01 0
51 0
19
Suspension podition
Suspension podition
Air outlet duct flange
440
4
NO Name Description
1 Liquid pipe connection ø6.35
2 Gas pipe connection ø12.70
3 Drain pipe connection without drain pump VP25 (OD ø32,ID ø25)
4 Power supply/Communication connection -
5 Air discharge grille flange -
6 Return air side -
7 Hook ø9.52 or M10
NOTE
As for drain pipe, please use VP25 (PVC, O.D.I - 1/4 (32 mm)).
As for suspension bolt, please use M10 or W3/8. (Produced at local site)

Other manuals for Samsung AR18TXEAAWKNEU

Related product manuals