EasyManua.ls Logo

Samsung AR18TXEAAWKNEU - Page 72

Samsung AR18TXEAAWKNEU
318 pages
Print Icon
To Next Page IconTo Next Page
To Next Page IconTo Next Page
To Previous Page IconTo Previous Page
To Previous Page IconTo Previous Page
Loading...
72
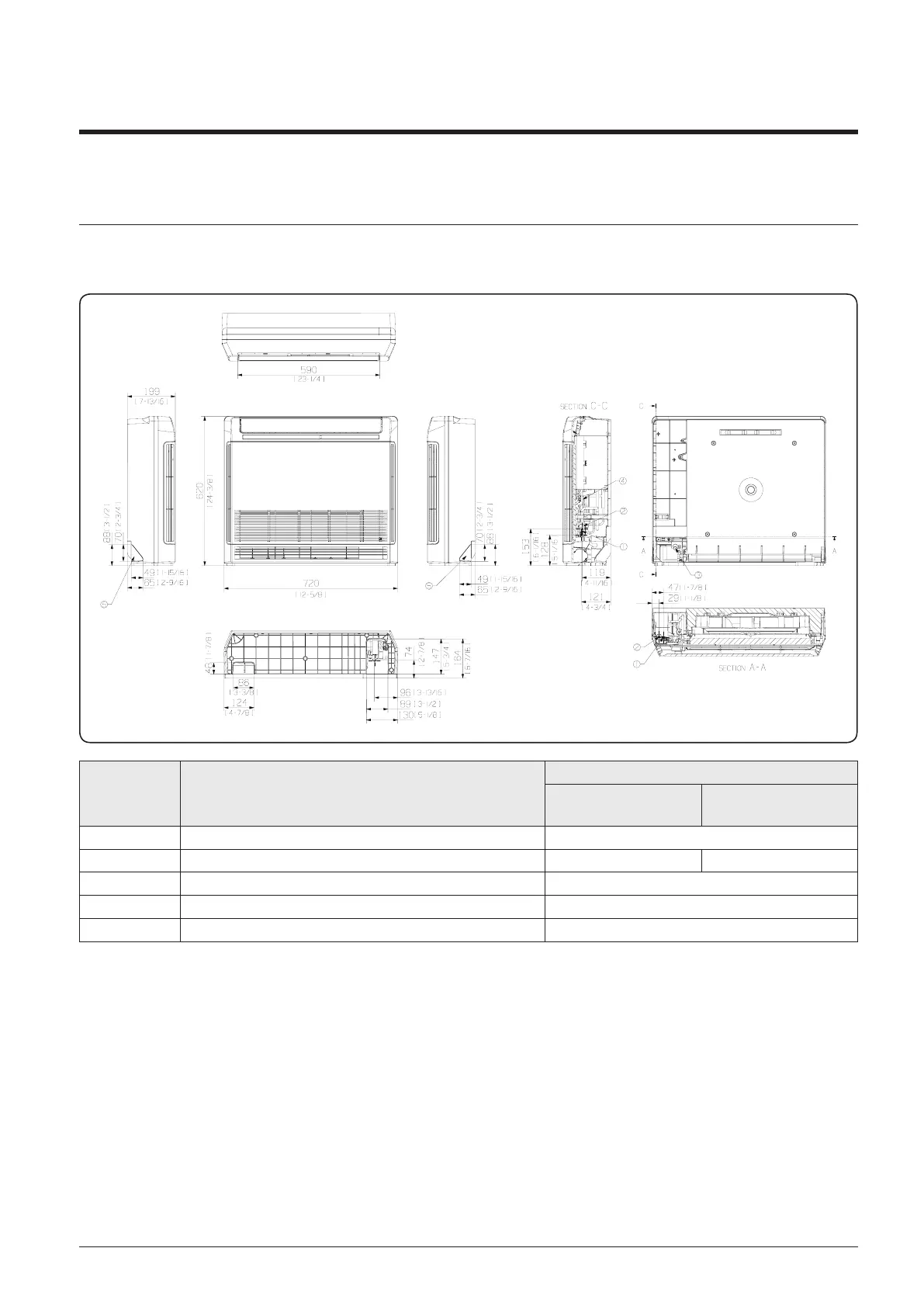
5. Dimensional Drawing
5-2. Indoor unit
7
Console : AJ026TNJDKG/EU, AJ035TNJDKG/EU, AJ052TNJDKG/EU
Units : mm [inches]
NO Name
Description
AJ026TNJDKG/EU
AJ035TNJDKG/EU
AJ052TNJDKG/EU
1 Liquid pipe connection 
2 Gas pipe connection  
3 Drain pipe connection ID18mm [11/16inch] Hose
4 Power supply & Communication wiring conduit -
6 Knockout hole for drain hose -

Other manuals for Samsung AR18TXEAAWKNEU

Related product manuals