EasyManua.ls Logo

Samsung GW71E - Фурна; Принадлежности; Командно Табло

Samsung GW71E
Print Icon
To Next Page IconTo Next Page
To Next Page IconTo Next Page
To Previous Page IconTo Previous Page
To Previous Page IconTo Previous Page
Loading...
2
BG
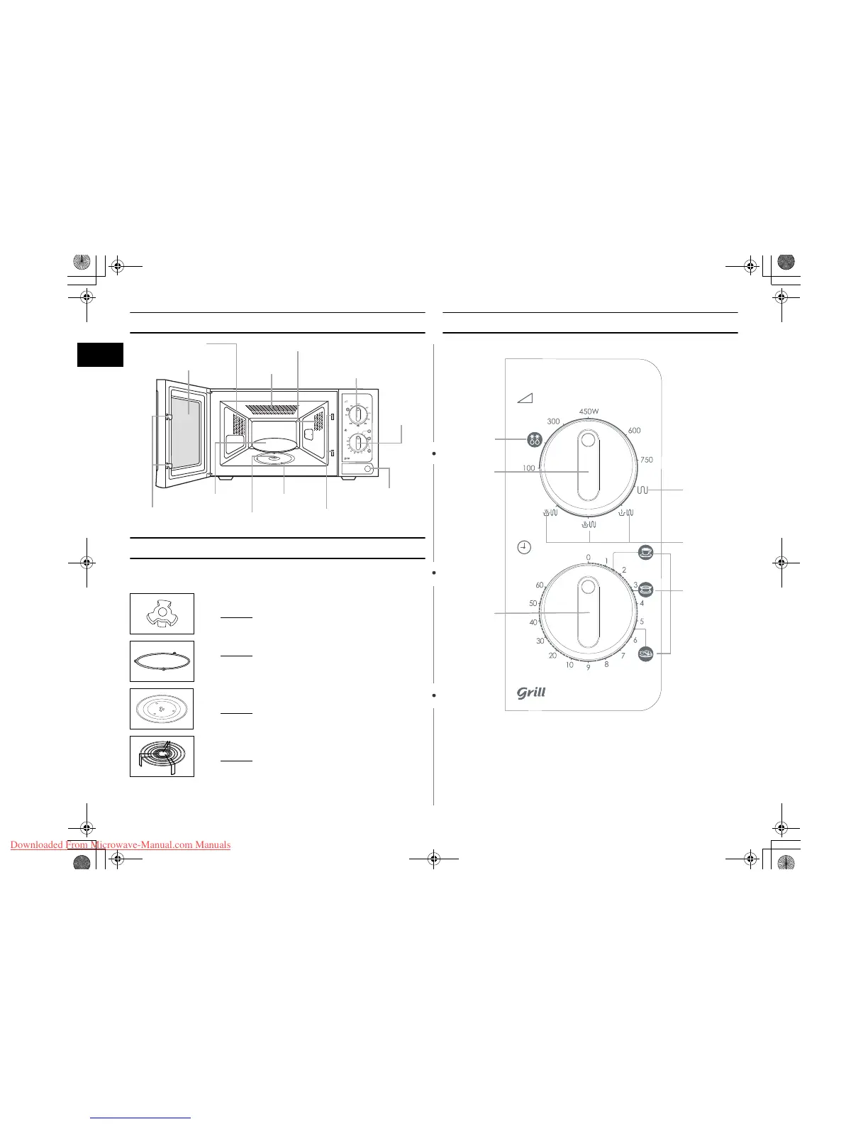
Фурна
Принадле жности
В зависимост от модела, който сте зак упили, получавате няколко
принадлежности, които могат да се използ ват по различни начини.
НЕ работете с микровълновата фурна без поставени ролков
пръстен и въртяща се поставка.
Командно табло
1. Съединител
, вече поставен над вала на двигателя в
основата на фурната.
Намена: Съединителят върти въртящата се
поставка.
2. Ролков пръстен
, за поставяне в центъра на фурната.
Намена: Ролковият пръстен поддържа въртящата
се поставка.
3. Въртяща се поставка
, за поставяне върху ролковия
пръстен с централен фитинг към съединителя.
Намена: Въртящата се поставка служи като главна
готварска повърхност; тя лесно може да
се сваля за почистване.
4. Метална скара
, за поставяне върху въртящата се
поставка.
Намена: Металната скара може да се използва с
грил и комбинирано готвене.
ВЕНТИЛАЦИОННИ
ОТВОРИ
КЛЮЧАЛКИ НА
ВРАТАТА
ВРАТА
ВЪРТЯЩА СЕ ПОСТАВКА
СЪЕДИНИТЕЛ
РОЛКОВ
ПРЪСТЕН
ОТВОРИ ЗА БЛОКИРОВКАТА
ЗА ОБЕЗОПАСЯВАНЕ
СВЕТЛИНА
КОПЧЕ ЗА КОНТРОЛ НА
ПРОМЕНЛИВА
МОЩНОСТ ЗА ГОТВЕНЕ
ТАЙМЕР
G
КОПЧЕ
ГРИЛ
БУТОН ЗА ОТВАРЯНЕ
НА ВРАТА
1.
РАЗМРАЗЯВАНЕ
2.
КОПЧЕ ЗА КОНТРОЛ НА МОЩНОСТ ЗА ГОТВЕНЕ
3.
СЕЛЕКТОР НА ТАЙМЕРА
4.
ГРИЛ
5.
КОМБИ
6.
МОМЕНТАЛНО ПРЕТОПЛЯНЕ
1
2
3
4
5
6
n~^XlivsTWZ[_\xinUGGwGYGG~SGtGX`SGYWXWGG_aX[Ght
Downloaded From Microwave-Manual.com Manuals

Table of Contents

Related product manuals