EasyManua.ls Logo

Samsung MH040FXEA2B - Wiring Diagram; Indoor Unit

Samsung MH040FXEA2B
172 pages
Print Icon
To Next Page IconTo Next Page
To Next Page IconTo Next Page
To Previous Page IconTo Previous Page
To Previous Page IconTo Previous Page
Loading...
Samsung Electronics6-1
This Document can not be used without Samsung's authorization.
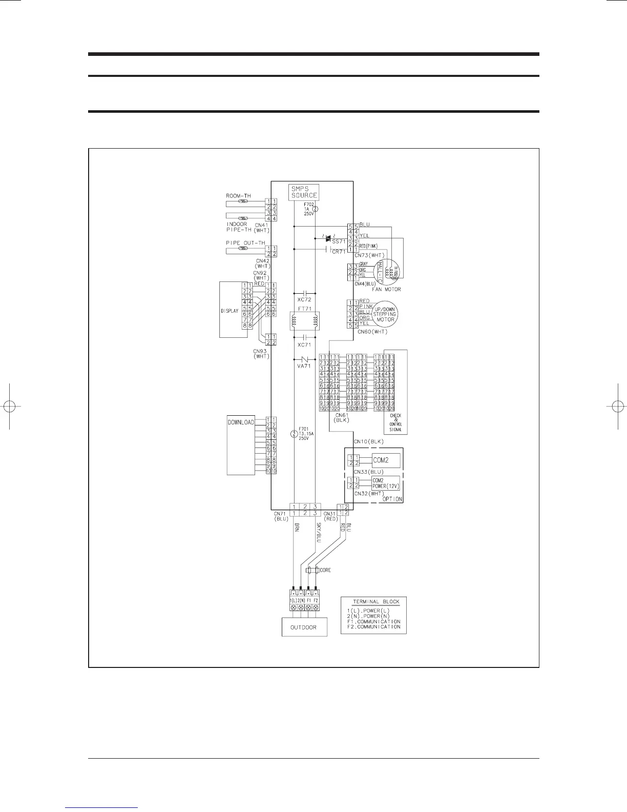
6. Wiring Diagram
6-1 Indoor Unit
MH✳✳✳FNEA/MH✳✳VF1-✳✳

Other manuals for Samsung MH040FXEA2B

Related product manuals