EasyManua.ls Logo

Samsung MH040FXEA2B - Page 127

Samsung MH040FXEA2B
172 pages
Print Icon
To Next Page IconTo Next Page
To Next Page IconTo Next Page
To Previous Page IconTo Previous Page
To Previous Page IconTo Previous Page
Loading...
8-6Samsung Electronics
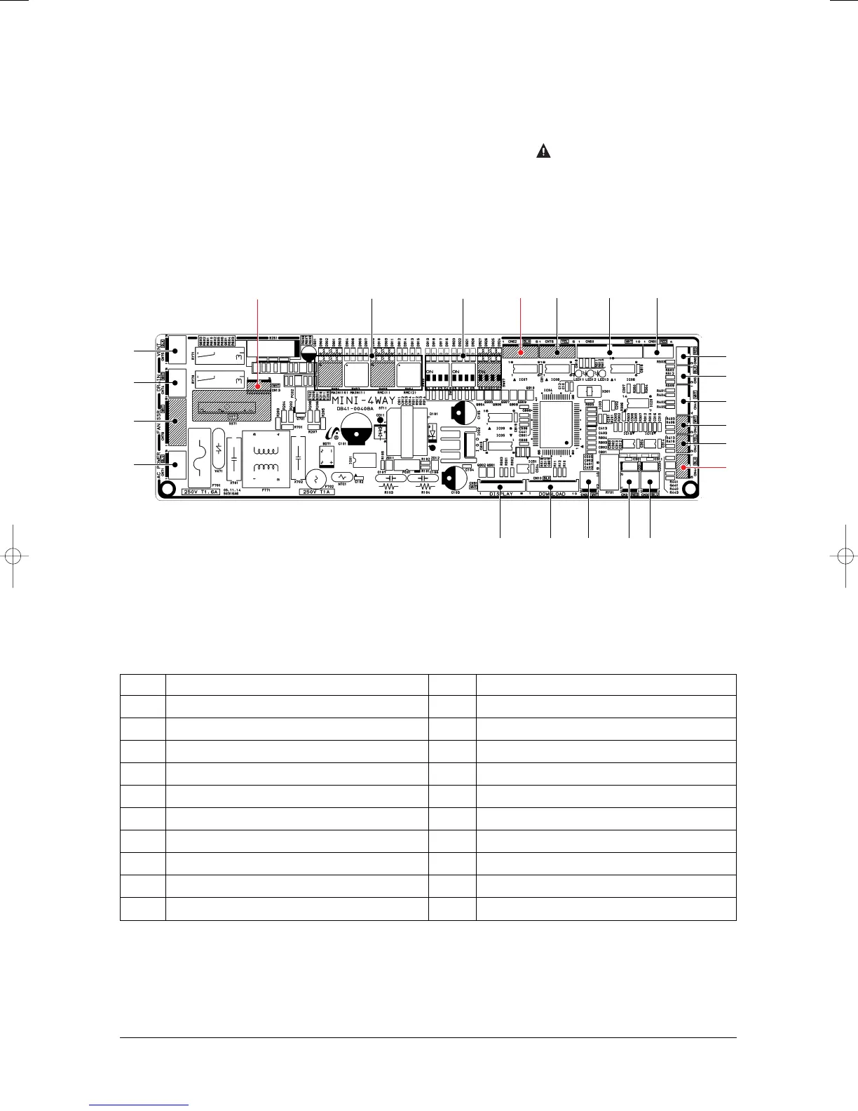
PCB Diagram
! Ventilator : YW396-03AV(BLK)
@ Drain Pump : YW396-03AV(WHT)
# Indoor Fan(SSR Control) : YW396-05AV(WHT)
$ AC Power : YW396-03AV(BLU)
% Indoor Address S/W(Main, RMC)
^ Option Switch
&
Electrical Expansion Valve(EEV) : B5B-XH-A(BLU)
* Load Control Signal
(
Panel Louver(Stepping Motor) : SMW250-10(WHT)
)
External Control Out(Error, Compressor State) : SMW250-04(RED)
1
External Control In(On/Off Control Signal) : SMW250-02(RED)
2 Floating Switch : SMW250-02(BLK)
3
Room/Eva.-In Temp. Sensor : SMW250-04(WHT)
4 Eva.-Out Temp. Sensor : SMW250-02(WHT)
5
Heater Discharge Temp. Sensor : SMW250-02(YEL)
6 RPM Feedback : SMW250-03(BLU)
7
Communication2(Wired Remocon_F3/F4) : YW396-02V(BLU)
8
Communication1(Outdoor_F1/F2) : YW396-02V(RED)
9
DC12V Out(Wired Remocon Power) : YW396-02V(WHT)
0 Micom Program Download : SMW200-10(BLK)
Display PCB : SMW200-9(WHT)
SSR Fan Control : SMW250-03(WHT)
1
2
3
4
5
6
MH✳✳✳FMEA
0 9 8 7
The red number connecter is not used.
!
@
#
$
& * ( )
% ^
The red number connecter is not used.

Other manuals for Samsung MH040FXEA2B

Related product manuals