EasyManua.ls Logo

Samsung Q70T - Garantire Unadeguata Ventilazione al Televisore

Samsung Q70T
108 pages
To Next Page IconTo Next Page
To Next Page IconTo Next Page
To Previous Page IconTo Previous Page
To Previous Page IconTo Previous Page
Loading...
Italiano - 8
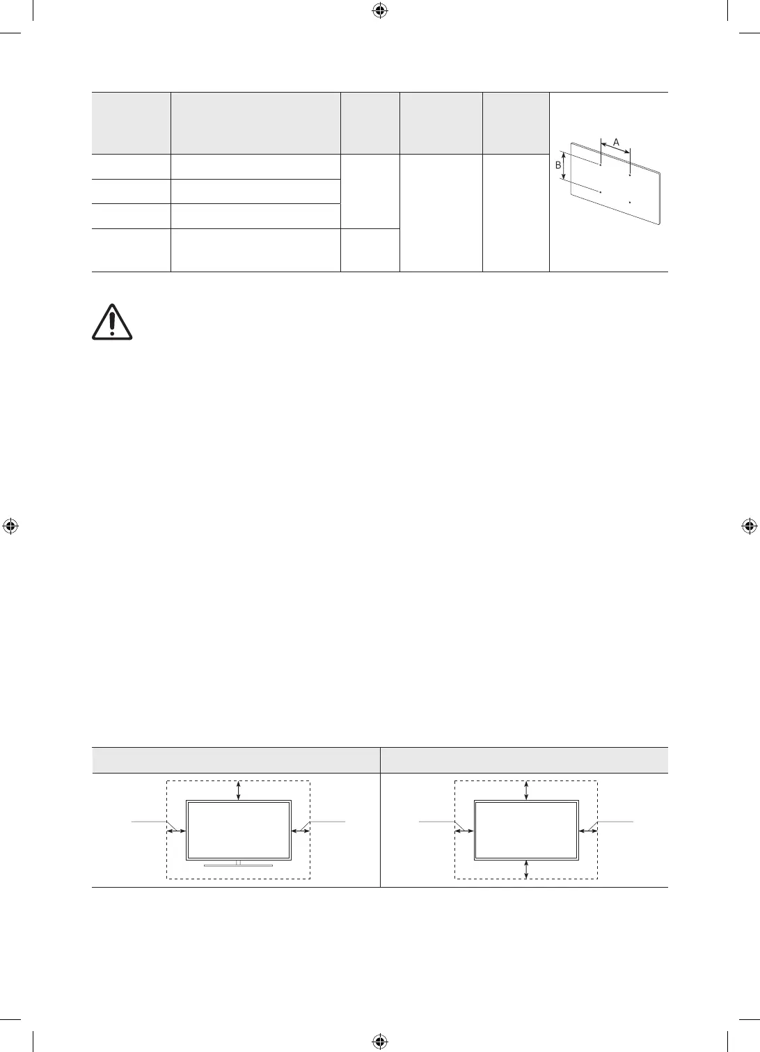
Dimensione
del televisore
in pollici
Specifiche alloggiamento viti
VESA (A * B) in millimetri
C (mm) Vite standard Quantità
43-55 200 x 200
39-41
*26-28
M8 4
58-65 400 x 300
75 400 x 400
85 600 x 400
39-41
*25-27
*: Queste specifiche sono supportate da Q80T, Q84T, Q85T, Q87T.
Non installare il kit di montaggio a parete mentre il televisore è acceso.La mancata osservanza di
questa precauzione può causare lesioni personali causate da scariche elettriche.
Non utilizzare viti più lunghe delle dimensioni standard o non conformi alle specifiche dello standard VESA.
Viti troppo lunghe possono danneggiare i componenti interni del televisore.
Per sistemi di montaggio a parete non conformi allo standard VESA, la lunghezza delle viti potrebbe
differire in base alle specifiche del sistema di montaggio usato.
Non serrare eccessivamente le viti. Ciò potrebbe danneggiare il prodotto o causarne la caduta con
conseguente rischio di lesioni. Samsung non può essere ritenuta responsabile per tali incidenti.
Samsung non potrà essere ritenuta responsabile per eventuali danni o lesioni personali qualora vengano
usati sistemi di montaggio a parete non conformi allo standard VESA o l'utente non segua le istruzioni di
installazione fornite.
Non installare il televisore con una inclinazione superiore ai 15 gradi.
E' necessario che l'installazione a parete del televisore sia eseguita da due persone.
Per i modelli da 82 pollici o maggiori, eseguire il montaggio del TV a parete con quattro persone.
Garantire un'adeguata ventilazione al televisore
Per garantire un’adeguata ventilazione all'apparecchio, durante l'installazione del televisore lasciare una
distanza minima di 10 cm tra il televisore e gli elementi circostanti (per esempio pareti, pannelli del vano TV,
ecc...). Una ventilazione inadeguata può causare l'innalzamento della temperatura interna del prodotto e il
rischio di incendio.
Se il televisore viene installato su un piedistallo o una staffa a parete, utilizzare solo componenti forniti
da Samsung Electronics. L'uso di componenti di altri produttori può causare malfunzionamenti o lesioni
personali per la caduta del prodotto.
Installazione con piedistallo Installazione con supporto a parete
10 cm10 cm
10 cm
10 cm
10 cm
10 cm10 cm

Table of Contents

Related product manuals