EasyManua.ls Logo

Samsung RF26HF - Slide Number 8

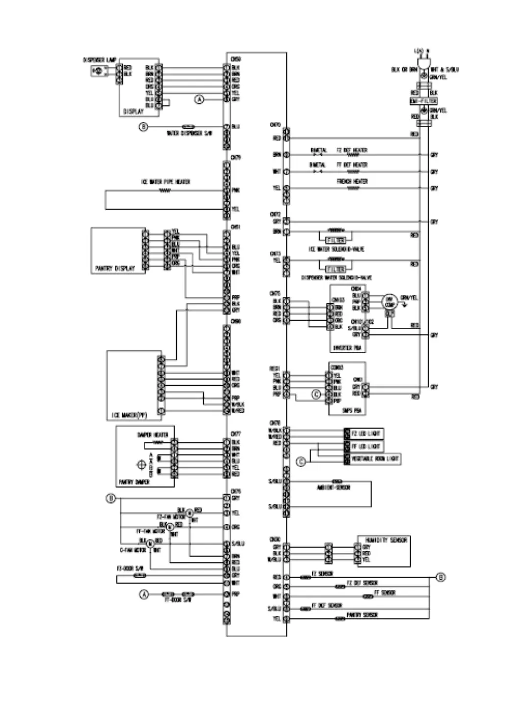
Samsung RF26HF
9 pages
Print Icon
To Next Page IconTo Next Page
To Next Page IconTo Next Page
To Previous Page IconTo Previous Page
To Previous Page IconTo Previous Page
Loading...
Model : RF26HF

Related product manuals