EasyManua.ls Logo

Samsung WF50K7500A Series - Page 20

Samsung WF50K7500A Series
80 pages
Print Icon
To Next Page IconTo Next Page
To Next Page IconTo Next Page
To Previous Page IconTo Previous Page
To Previous Page IconTo Previous Page
Loading...
Installation
Installation
English20
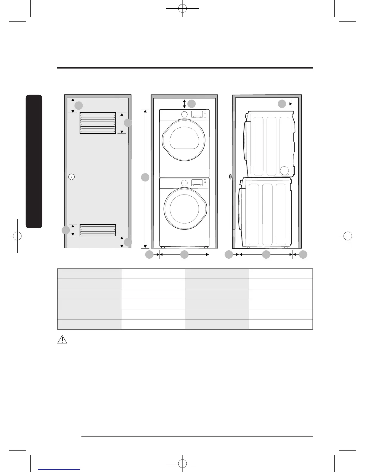
A
LG
C
D
B
F
H J K
I
E
A 3 in. (76 mm) G 1 in. (25 mm)
B 48 in². (3100 mm²) H 27 in. (686 mm)
C 24 in². (1550 mm²) I 5 in. (127 mm)
D 3 in. (76 mm) J 3 in. (76 mm)
E 6 in. (152 mm) K 34 in. (864 mm)
F 78.5 in. (1994 mm) L 8 in. (203 mm)
WARNING
• Samsung’s washers and dryers can be stacked to maximize usable space.
• The dryer legs need to be removed to stack the washer and dryer. You can purchase an
optional stacking kit from your Samsung retailer.
WF7500K-DC68-03667A-01_EN.indd 20 2016/4/1 9:20:06

Related product manuals