EasyManua.ls Logo

SandenVendo V21 621 - Page 65

Default Icon
257 pages
Print Icon
To Next Page IconTo Next Page
To Next Page IconTo Next Page
To Previous Page IconTo Previous Page
To Previous Page IconTo Previous Page
Loading...
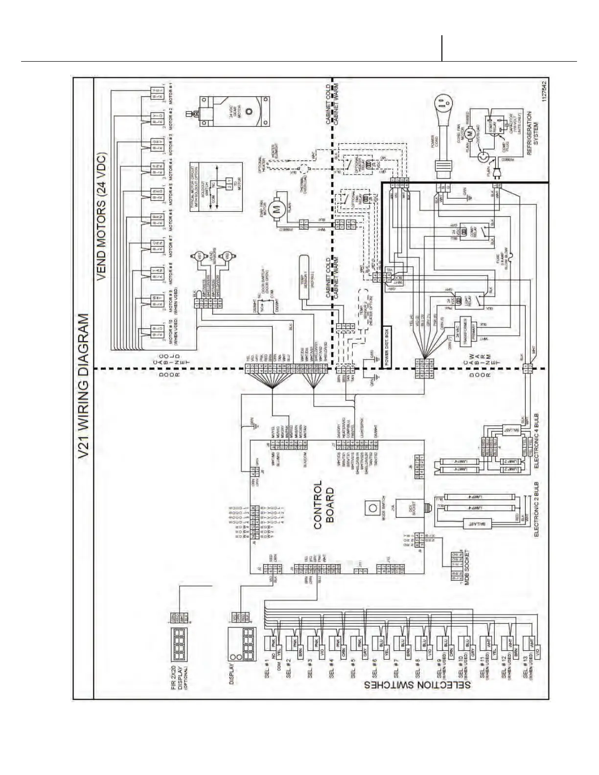
V21 Parts & Service Manual
All V21 Identified Equipment
REV A – 10/2013
P/N: 1230263
V21 12.4 Programming Coke Chameleon | P2-17

Related product manuals