EasyManua.ls Logo

Sartorius EB35 EDE-IX - Dimensions

Sartorius EB35 EDE-IX
105 pages
Print Icon
To Next Page IconTo Next Page
To Next Page IconTo Next Page
To Previous Page IconTo Previous Page
To Previous Page IconTo Previous Page
Loading...
91
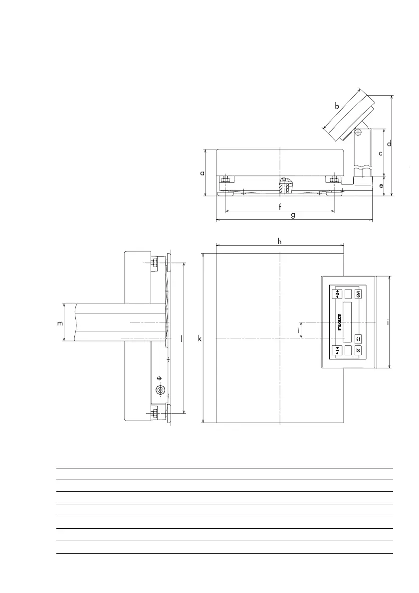
Dimensions
Dimensions (in millimeters)
Model a b c d e f g h i j k l m
EB6DCE-IX min.88 103 325 425 37 205 295 240 174 30 320 285 71
EB15DCE-IX min.88 103 325 425 37 205 295 240 174 30 320 285 71
EB35DCE-IX min.90 103 500 600 37 265 355 300 174 60 400 365 71
EB60DCE-IX min.90 103 500 600 37 265 355 300 174 60 400 365 71
EB60FEG-IX min.96 103 750 839 26 343 465 400 174 500 443 71
EB150FEG-IX min.96 103 750 839 26 343 465 400 174 500 443 71

Related product manuals