EasyManua.ls Logo

SattControl SattCon 05-45 - Page 34

Default Icon
58 pages
Print Icon
To Next Page IconTo Next Page
To Next Page IconTo Next Page
To Previous Page IconTo Previous Page
To Previous Page IconTo Previous Page
Loading...
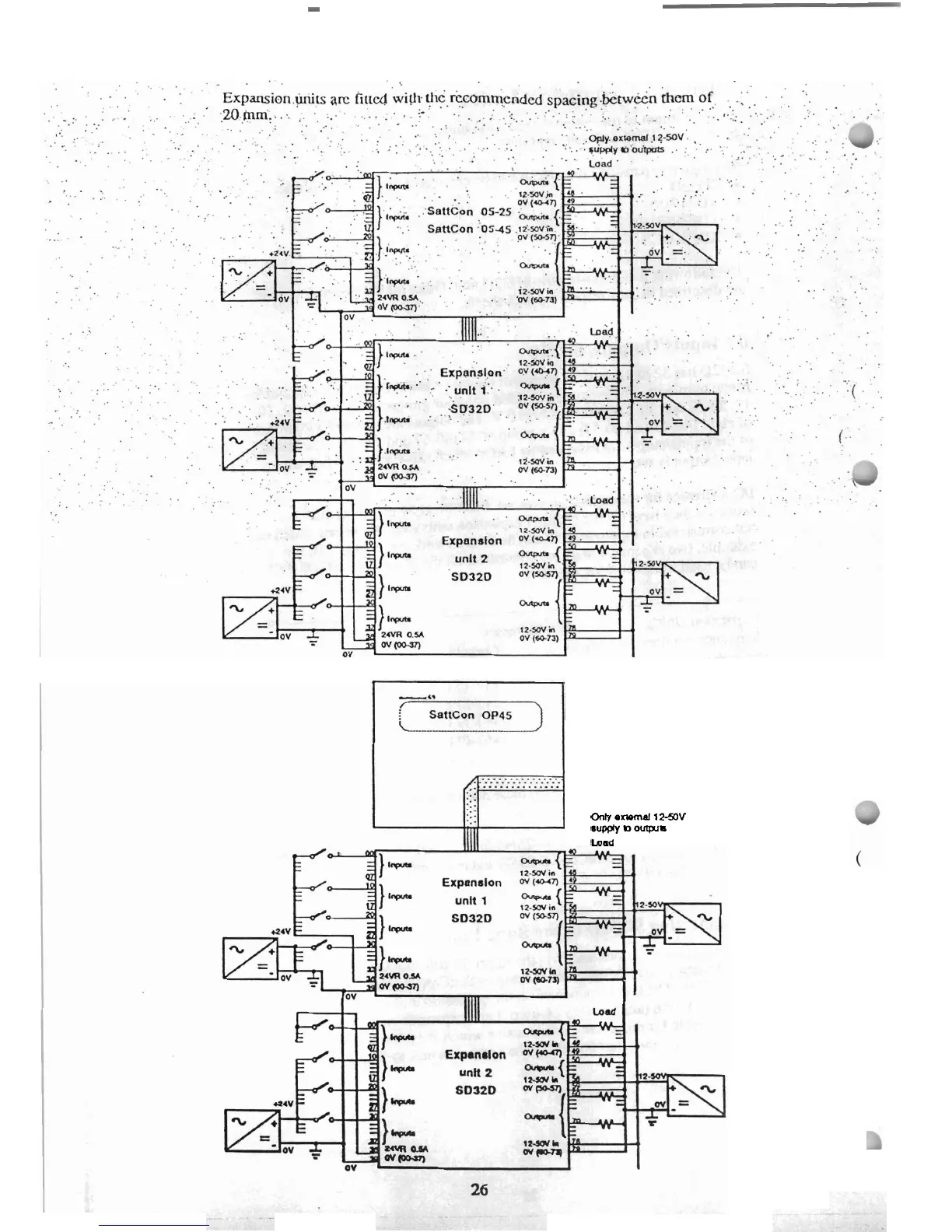
Only
0-
12-50V
ruppdy
aoutpla
Load

Related product manuals