EasyManua.ls Logo

Savory SP-5 - Page 4

Default Icon
12 pages
Print Icon
To Next Page IconTo Next Page
To Next Page IconTo Next Page
To Previous Page IconTo Previous Page
To Previous Page IconTo Previous Page
Loading...
SP-5 Operator Manual
4
INSTALLATION (CONT’D)
ELECTRICAL REQUIREMENTS (CONT’D)
5. LEGS MUST BE LEFT ON THE ROTISSERIE WHEN IT IS INSTALLED. The legs are needed to allow adequate
airflow under the unit, which is necessary for proper cooling and operation. Once installed, adjust the legs to level
the rotisserie.
6. NO OBSTRUCTIONS under, on top, or around the unit to restrict airflow or cause unsafe conditions.
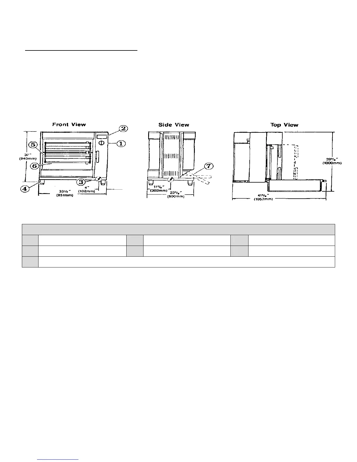
MECHANICAL DIMENSIONS
Unit Weight – 216 lbs. (98 kg.)
MECHANICAL DIMENSIONS ILLUSTRATION KEY
1 Switch with program selector 2 Display Window 3 Electrical Connection
4 Adjustable Feet 5 Rotor Unit 6 Double Spits, 5 pcs.
7 Fat Tray (Pull & tilt for emptying. The tray is removable.)