EasyManua.ls Logo

Schindler 3100 - Page 245

Schindler 3100
269 pages
Print Icon
To Next Page IconTo Next Page
To Next Page IconTo Next Page
To Previous Page IconTo Previous Page
To Previous Page IconTo Previous Page
Loading...
Schindler 3100/3300/6300 J 43402603 / 01 245/269
Copyright © 2017 INVENTIO AG
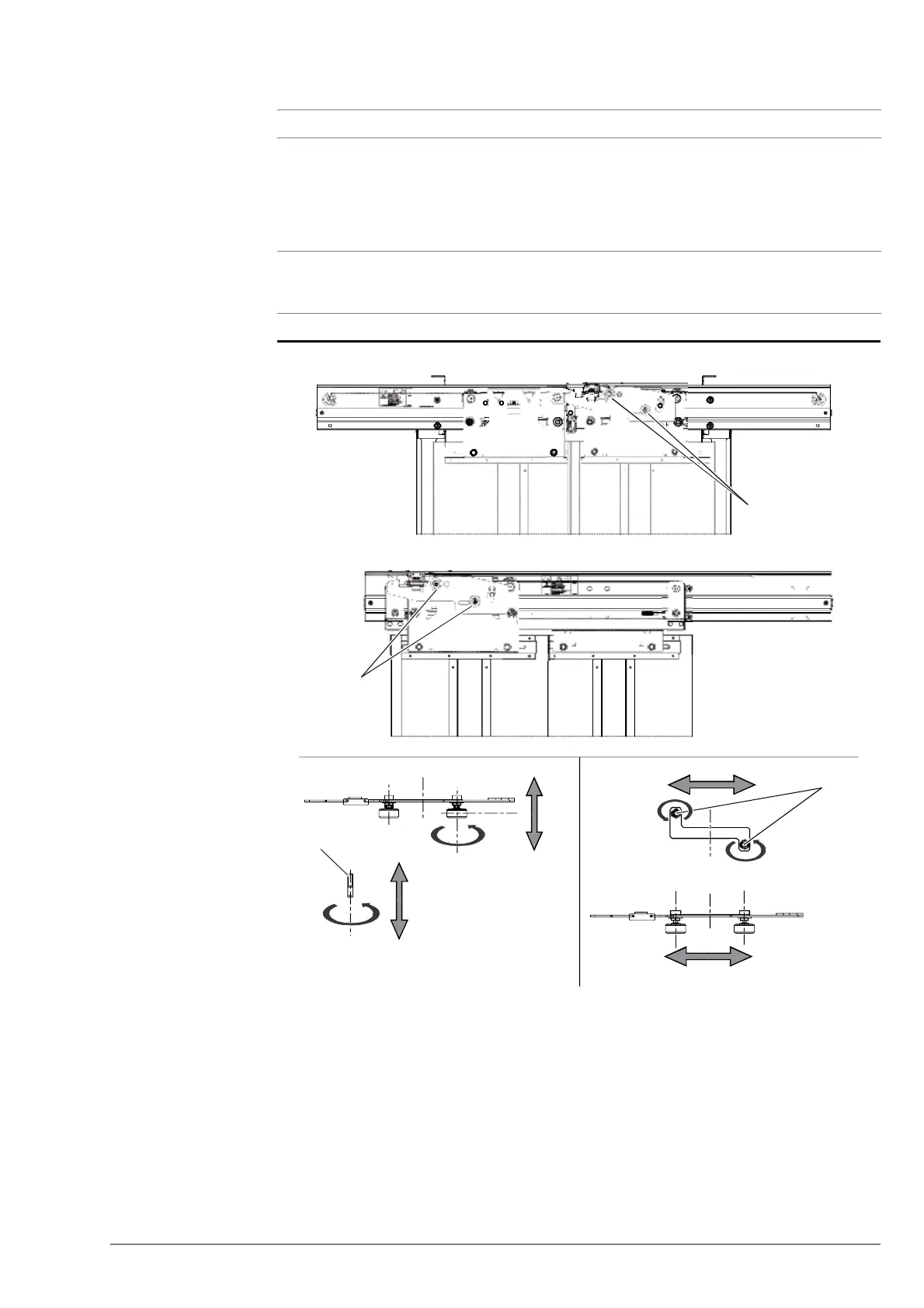
Adjustment of the
Lock Rollers
Lock Rollers Adjustment [43402603_004; 16.02.2016]
2 Check the lock function:
The lock play should be 1.2 ... 3 mm (not adjustable).
Check the lock play does not break the door contact (3) function.
The hook lock (4) must be 7 mm engaged to the counter lock (5) before to
close the contact (3) with the bridge.
3 The trucks must touch the rubbers when the doors are closed.
Note: In case of not right function of the lock the full truck has to be replaced.
Due to safety reasons it is not allowed to untight the lock fixing bolt (6).
No Step
1Screw
2 Lock roller
3Screw
2
2
3
1
0
+5
0
+5
-8 +8
-8 +8

Table of Contents

Related product manuals