EasyManua.ls Logo

Schüco B 1956 - Page 8

Schüco B 1956
Print Icon
To Next Page IconTo Next Page
To Next Page IconTo Next Page
To Previous Page IconTo Previous Page
To Previous Page IconTo Previous Page
Loading...
S.B 1956; S.B 1959
10000429979-09.2016-02
|
8Schüco International KG · Karolinenstraße 1–15 · D33609 Bielefeld
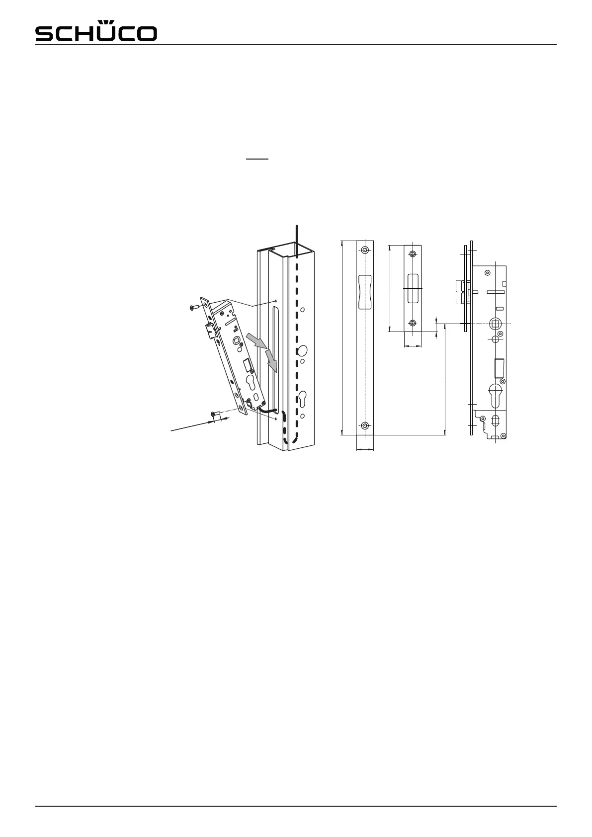
5.2 Montage
•Stecker des Anschlusskabels in die Anschlussbuchse an der Unterseite des Schlosses ganz einstecken.
•Schloss von schräg oben in die Schlosstasche einführen. Dabei das Kabel im Profil (s. Abb. 7) verstauen.
•Dabei darauf achten, dass das Kabel weder geknickt noch auf Zug belastet wird. Kabel anschließend
nicht stramm ziehen!
•Schloss mit den zwei mitgelieferten Senkkopfschrauben in den vorgesehenen Befestigungspunkten
am Profil befestigen. Bei Verwendung anderer Schrauben darauf achten, dass eine maximale
Schraubenlänge von 18 mm nicht überschritten wird, da diese ansonsten an den Schlosskasten
anstoßen.
•Zum Abschluss der Montage das Schloss durch ein Signal auf den Signaleingang in Bereitschaft
versetzen.
max. 18 mm
270
120
24
24
16
154.5
Abb.7: Einbau
S.B 9000 1046
S.B 1990 3XXX
S.B-19900
9-43501-01-0-8 S.B 1956 /
S.B 1959

Related product manuals