EasyManua.ls Logo

Scotsman AC 126 - Page 6

Scotsman AC 126
39 pages
Print Icon
To Next Page IconTo Next Page
To Next Page IconTo Next Page
To Previous Page IconTo Previous Page
To Previous Page IconTo Previous Page
Loading...
Page 6
Page 6
AC 126 AS 6 Air
AC 126 WS 6 Water
Stainless steel 1/2 39 Kg.
Start . Electric power cons.
Amps Kwh per 24 Hr
Model Cond. unit Finish Comp. HP
SPECIFICATIONS
Basic electr. Amps Watts Nr. of wires Amps fuse
230/50/1 4 19 600 3 x 1.5 mm
2
10
190*
750*
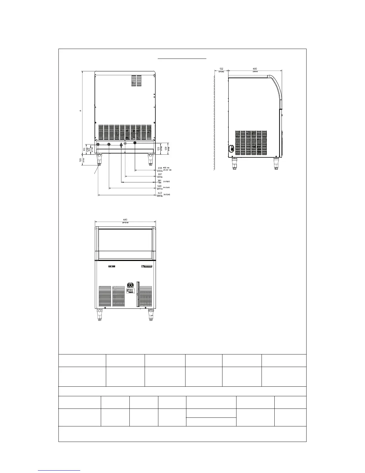
AC 126 - CUBER
machine specifications
Cubes per harvest: 48 medium
* A 15°C water temperature
Dimensions:
HEIGHT (without legs) 930 mm.
HEIGHT (with legs) 1050 mm.
WIDTH 680 mm.
DEPTH 600 mm.
WEIGHT 75 Kgs.
14.8
11.8
Bin Water req.
Capacity lt/24 HR
- OVERFLOW DRAIN
CORD SET
WATER INLET
WATER INLET - WATER COOLED UNIT
WATER OUTLET - WATER COOLED UNIT
ADJUSTABLE FOOT
MIN. FOR UTILITY CONNECTIONS

Other manuals for Scotsman AC 126

Related product manuals