EasyManua.ls Logo

Scotsman AC 206 - AC 206 Cuber Machine Specifications

Scotsman AC 206
39 pages
Print Icon
To Next Page IconTo Next Page
To Next Page IconTo Next Page
To Previous Page IconTo Previous Page
To Previous Page IconTo Previous Page
Loading...
Page 10
Page 10
Stainless steel 1/2 50 Kg.
Start . Electric power cons.
Amps Kwh per 24 Hr
Model Cond. unit Finish Comp. HP
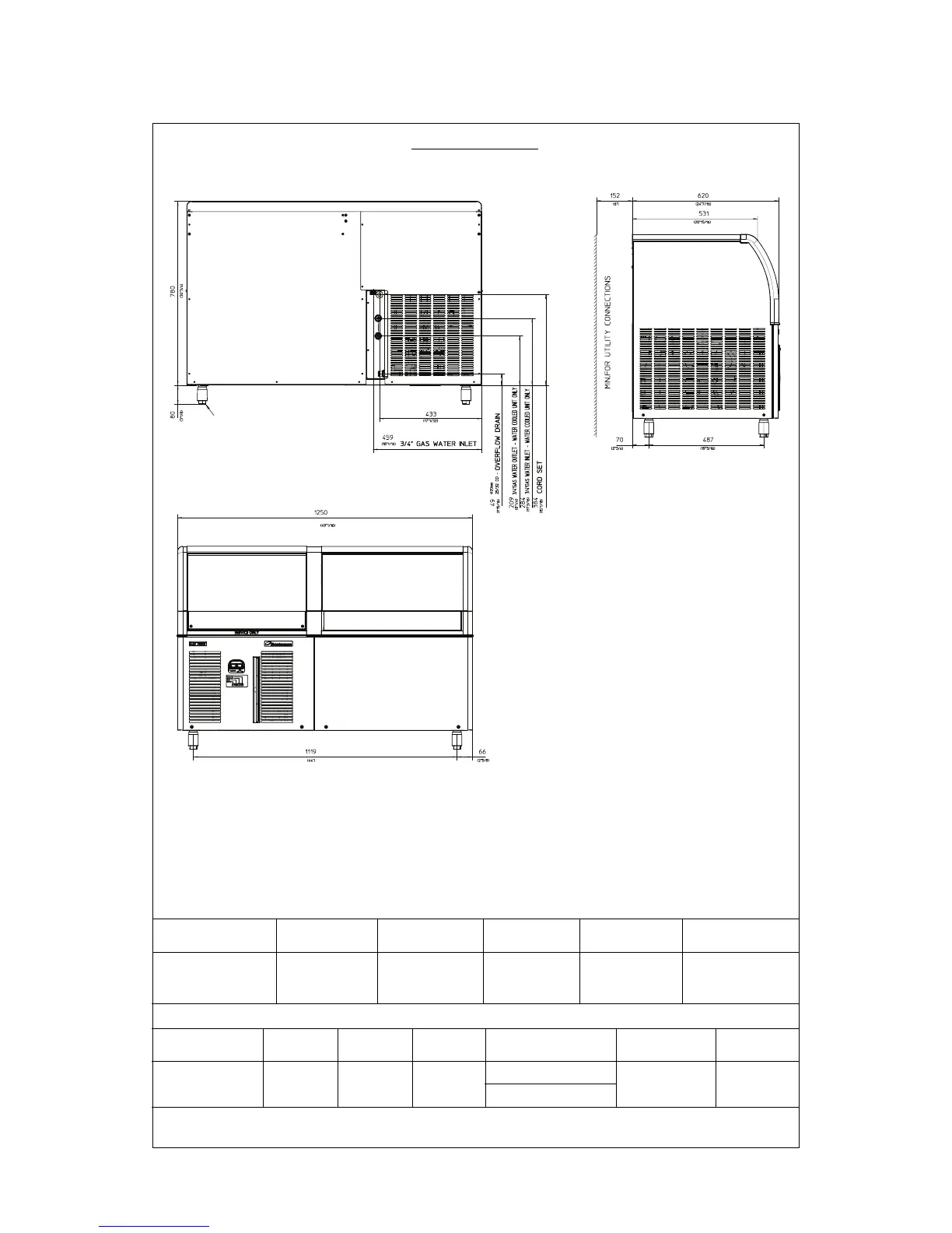
SPECIFICATIONS
Basic electr. Amps Watts Nr. of wires Amps fuse
230/50/1 4.7 19 950 3 x 1.5 mm
2
16
280*
1400*
AC 206 - CUBER
machine specifications
Cubes per harvest: 72 large / 102 medium / 198 small
* A 15°C water temperature
20.8
17.3
Bin Water req.
Capacity lt/24 HR
AC 206 AS 6 Air
AC 206 WS 6 Water
Dimensions:
HEIGHT (without legs) 780 mm.
HEIGHT (with legs) 860 mm.
WIDTH 1250 mm.
DEPTH 620 mm.
WEIGHT 115 Kgs.
ADJUSTABLE FOOT

Other manuals for Scotsman AC 206

Related product manuals