EasyManua.ls Logo

Scotsman C0530 PRODIGY PLUS - C0530, C0630, C0830 and C1030 Cabinet Dimensions

Scotsman C0530 PRODIGY PLUS
23 pages
Print Icon
To Next Page IconTo Next Page
To Next Page IconTo Next Page
To Previous Page IconTo Previous Page
To Previous Page IconTo Previous Page
Loading...
April, 2016
Page 4
C0530E through C1030E
Remote Condenser Models - User Manual
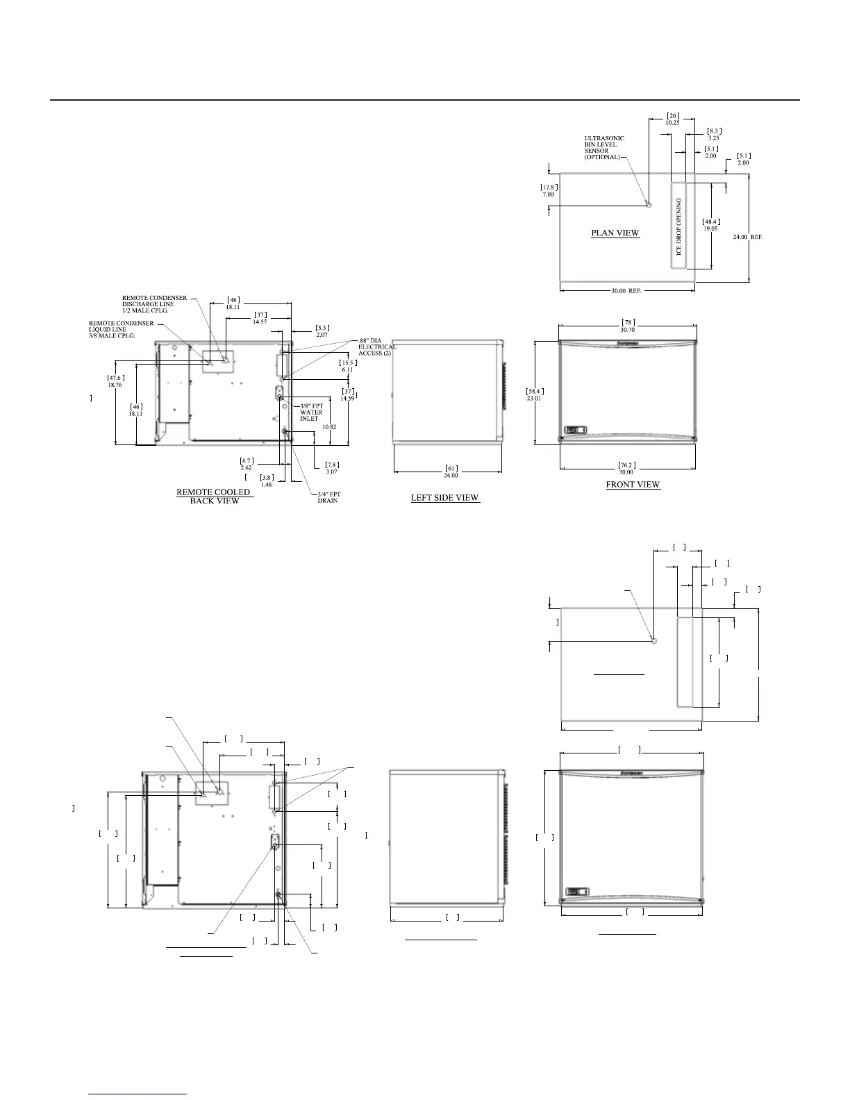
C0530, C0630, C0830 and C1030 Cabinet Dimensions
Note: Top number is centimeters, bottom number is inches.
30.00
76.2
29.00
73.7
77.99
30.70
24.00
61
LEFT SIDE VIEW
FRONT VIEW
24.06
61.1
24.76
62.9
17.35
44.1
13.81
35.1
2.20
5.6
3.07
7.8
13.47
34.2
6.11
15.5
20.59
52.3
1.48
3.8
2.10
5.3
3/8" FPT
WATER
INLET
3/4" FPT
DRAIN
REMOTE CONDENSER
LIQUID LINE
3/8 MALE CPLG.
REMOTE CONDENSER
DISCHARGE LINE
1/2 MALE CPLG.
.88" DIA
ELECTRICAL
ACCESS (2)
REMOTE COOLED
BACK VIEW
24.00
REF.
30.00
REF.
2.00
5.1
2.00
5.1
19.05
48.4
3.25
8.3
10.25
26
7.00
17.8
ICE DROP OPENING
ULTRASONIC
BIN LEVEL
SENSOR
(OPTIONAL)
PLAN VIEW
C0530R, C0630R
C0830R, C1030R

Related product manuals