EasyManua.ls Logo

Scotsman EC 85 - Wiring Diagram EC 125-175

Scotsman EC 85
43 pages
Print Icon
To Next Page IconTo Next Page
To Next Page IconTo Next Page
To Previous Page IconTo Previous Page
To Previous Page IconTo Previous Page
Loading...
Page 37
Page 37
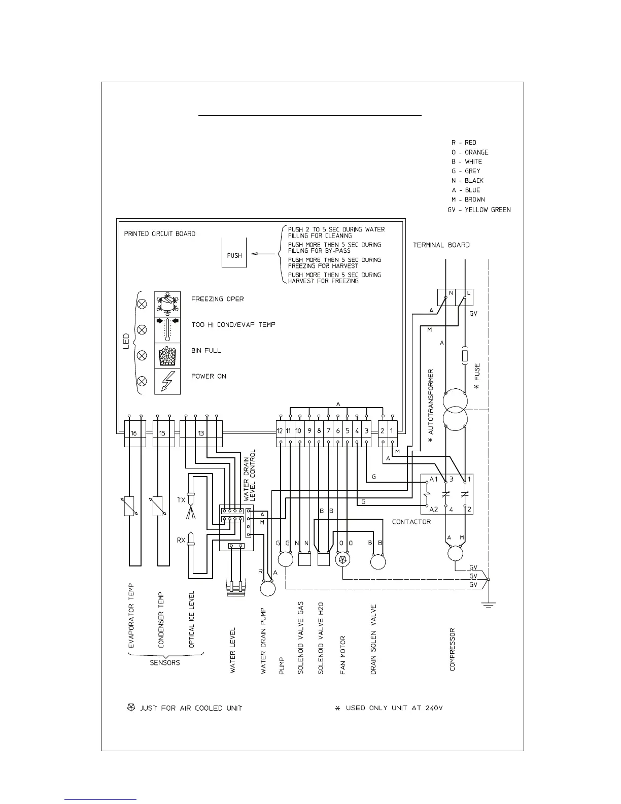
WIRING DIAGRAM
EC 125/175 AIR & WATER COOLED 230/50-60/1

Related product manuals