EasyManua.ls Logo

Scotsman EC 85 - Page 6

Scotsman EC 85
43 pages
Print Icon
To Next Page IconTo Next Page
To Next Page IconTo Next Page
To Previous Page IconTo Previous Page
To Previous Page IconTo Previous Page
Loading...
Page 6
Page 6
Stainless steel 1/4 14 Kg.
EC 55 AS 6 Air
EC 55 WS 6 Water
Start . Electric power cons.
Amps Kwh per 24 Hr
Capacity Water req.
the cold store lt/24 HR
Model Cond. unit Finish Comp. HP
SPECIFICATIONS
Basic electr. Amps Watts Nr. of wires Amps fuse
230/50/1 2.2 11 390 7 3 x 1.5 mm
2
10
0110 **
290*
EC 55 - CUBER
machine specifications
Cubes per harvest: 24 medium
* A 15°C water temperature
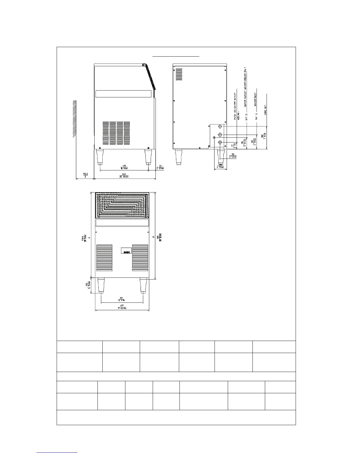
Dimensions:
HEIGHT 738 mm.
WIDTH 457 mm.
DEPTH 522 mm.
WEIGHT 44 Kgs.

Related product manuals