EasyManua.ls Logo

Scotsman Prodigy Plus A Series - NH0422, NS0422, FS0522, NH0622, NS0622, F0822 Cabinet Layout

Scotsman Prodigy Plus A Series
23 pages
Print Icon
To Next Page IconTo Next Page
To Next Page IconTo Next Page
To Previous Page IconTo Previous Page
To Previous Page IconTo Previous Page
Loading...
NH0422, NS0422, FS0522, NH0622, NS0622, FS0822, NH0922, NS0922, FS1222, NH1322, NS1322, FS1522
A Series Air, Water, or Remote User Manual
October 2019
Page 4
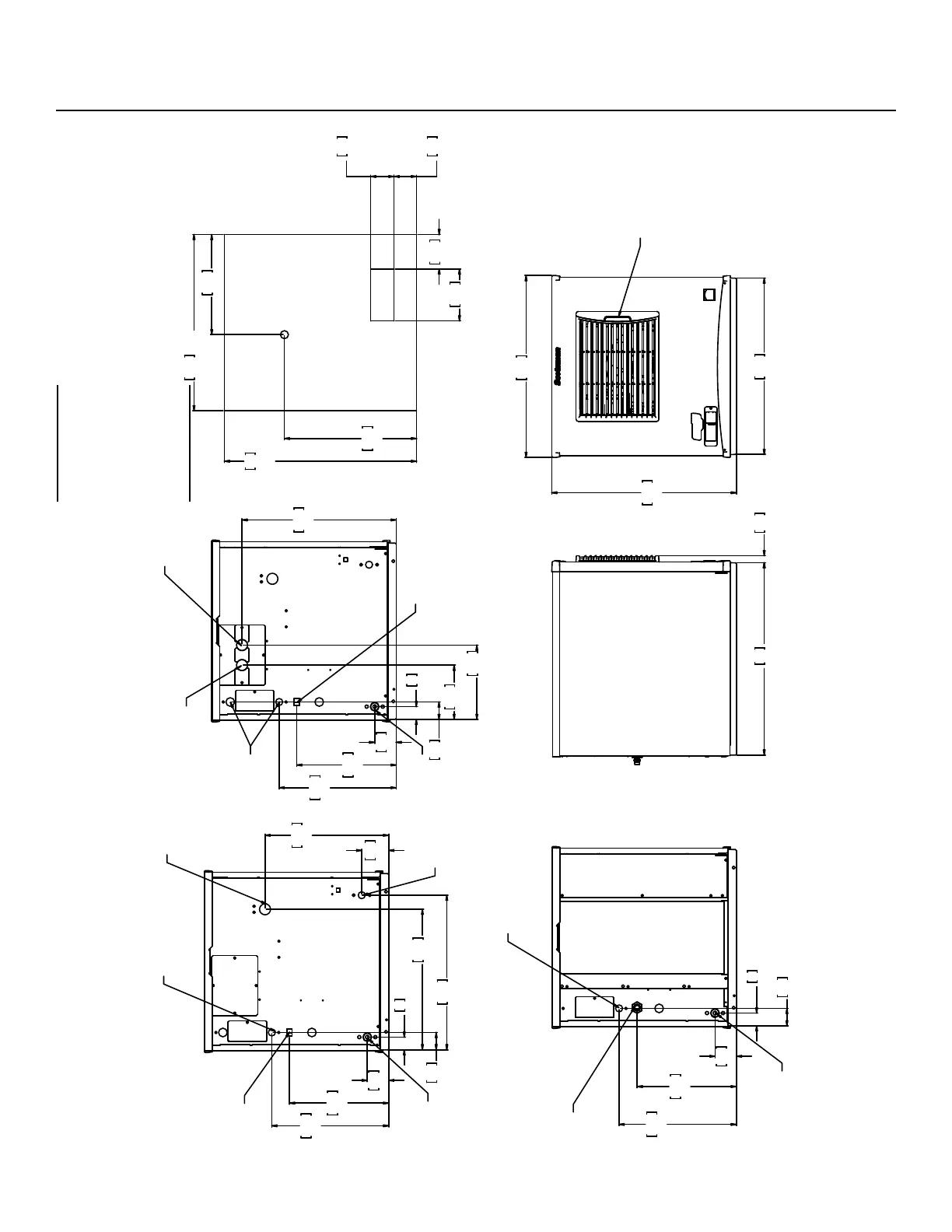
NH0422, NS0422, FS0522, NH0622, NS0622, F0822 Cabinet Layout
ICE DROP
OPENING
REMOTE COOLED
BACK VIEW
WATER COOLED
BACK VIEW
AIR COOLED
BACK VIEW
LEFT SIDE VIEW
FRONT VIEW
57.7
22.70
58.4
23.00
55.9
22.00
LOUVER AND
REMOVABLE FILTER
A/C UNITS ONLY
61
24.00
2.3
.90
4
1.59
5.5
2.17
4.7
1.85
23.1
9.1
37.2
14.65
3/4" FPT
DRAIN
.88 DIA.
ELECTRICAL
ACCESS
3/8" FLARE
MACHINE
WATER
INLET
61
24.00
REF.
41.9
16.50
31.8
12.50
55.9
22.00 REF.
10.9
4.30
16.5
6.48
7.1
2.81
7.4
2.92
PLAN VIEW
23.1
9.1
4
1.59
5.5
2.17
4.7
1.85
37.1
14.60
8.6
3.38
39.2
15.45
44.6
17.55
49.1
19.31
3/8" FPT
CONDENSER
WATER
INLET
.88 DIA.
ELECTRICAL
CONNECTION
3/8" FLARE
MACHINE
WATER
INLET
3/4" FPT
DRAIN
1/2" FPT
CONDENSER
DRAIN
23.1
9.1
4.7
1.85
37.1
14.60
4
1.59
5.5
2.17
17.2
6.78
23.6
9.28
48.9
19.24
REMOTE COND.
LIQUID LINE
3/8" COPPER
BRAZE JOINT.
REMOTE COND.
DISCHARGE LINE
1/2" COPPER
BRAZE JOINT
.88 DIA.
ELECTRICAL
CONNECTION
3/4" FPT
DRAIN
3/8" FLARE
MACHINE
WATER
INLET
Note: Bin Top
Cut-outs for
drop zone
should include
ultrasonic
sensor location

Other manuals for Scotsman Prodigy Plus A Series

Related product manuals