EasyManua.ls Logo

Sea Ray 210 Select - DC Wiring Diagram - Part 1

Sea Ray 210 Select
18 pages
Print Icon
To Next Page IconTo Next Page
To Next Page IconTo Next Page
To Previous Page IconTo Previous Page
To Previous Page IconTo Previous Page
Loading...
10
210 Se l e c t ow n e r S ma n u a l
210 Select
Manual Part Number: MRP 1902268
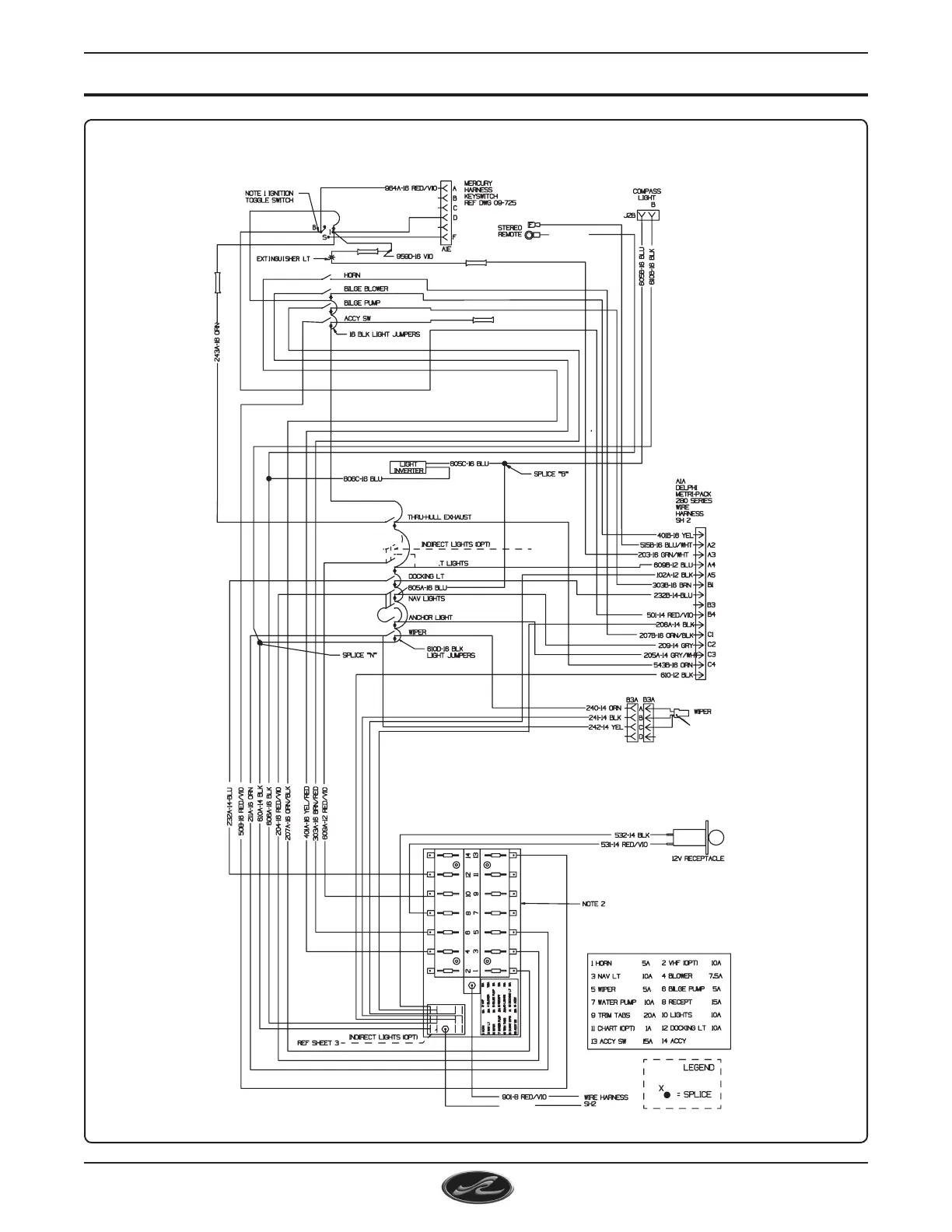
dc wi r i n g di a g r a m
drawing no. 09-601 (1 of 3)
(fi g . 10.1)
Warning:
DO NOT attempt to
work on the electrical system
of this boat without professional
assistance.

Related product manuals