EasyManua.ls Logo

Seagate Barracuda 7200.7 Plus - Page 31

Seagate Barracuda 7200.7 Plus
52 pages
Print Icon
To Next Page IconTo Next Page
To Next Page IconTo Next Page
To Previous Page IconTo Previous Page
To Previous Page IconTo Previous Page
Loading...
Barracuda 7200.7 Product Manual, Rev. E 21
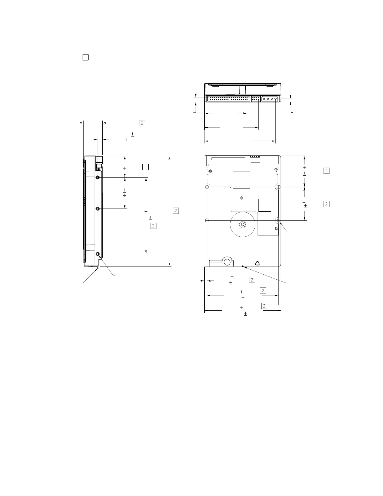
Figure 1. Mounting dimensions—top, side and end view
Notes:
1. Dimensions are shown in inches (mm).
2 Dimensions per SFF-8301 specification.
3 x 6-32 UNC-2B
0.150 (3.81) max. fastener
penetration both sides. 3 threads
minimum engagement.
R
ecommended
c
ase temperature
m
easurement location
0.125 0.01
(3.18 0.25)
3.75 0.01
(95.25 0.25)
4.0 0.01
(101.60 0.25)
Recommended
case temperature
measurement location
4 x 6-32 UNC-2B
0.150 (3.81) max. fasten
er
penetration. 3 threads
minimum engagement.
1.75 0.01
(44.45 0.25)
1.625 0.02
(41.28 0.51)
4.0 0.01
(101.60 0.25)
5.787 max
(146.99)
1.638 0.01
(41.61 0.25)
1.122 0.02
(28.5 0.51)
3 x 0.25 0.015
(6.35 0.037)
both sides
1.028 max
(26.11)
0.228
(5.79)
0.178
(4.27)
2.23
(56.56)
2.83
(71.80)
3.71
(94.35)
2

Related product manuals