EasyManua.ls Logo

Seg HighTECH Line - Page 14

Seg HighTECH Line
42 pages
Print Icon
To Next Page IconTo Next Page
To Next Page IconTo Next Page
To Previous Page IconTo Previous Page
To Previous Page IconTo Previous Page
Loading...
14 TD_MRI1_06.05_GB
4.5 Earth-fault directional feature
(ER/XR-relay type)
A built-in earth-fault directional element is available for
applications to power networks with isolated or with
arc suppressing coil compensated neutral point.
For earth-fault direction detection it is mainly the ques-
tion to evaluate the power flow direction in zero se-
quence system. Both the residual voltage and neutral
(residual) current on the protected line are evaluated to
ensure a correct direction decision.
In isolated or compensated systems, measurement of
reactive or active power is decisive for earth-fault de-
tection. It is therefore necessary to set the ER/XR-relay
type to measure according to sin ϕ or cos ϕ methods,
depending on the neutral-point connection method.
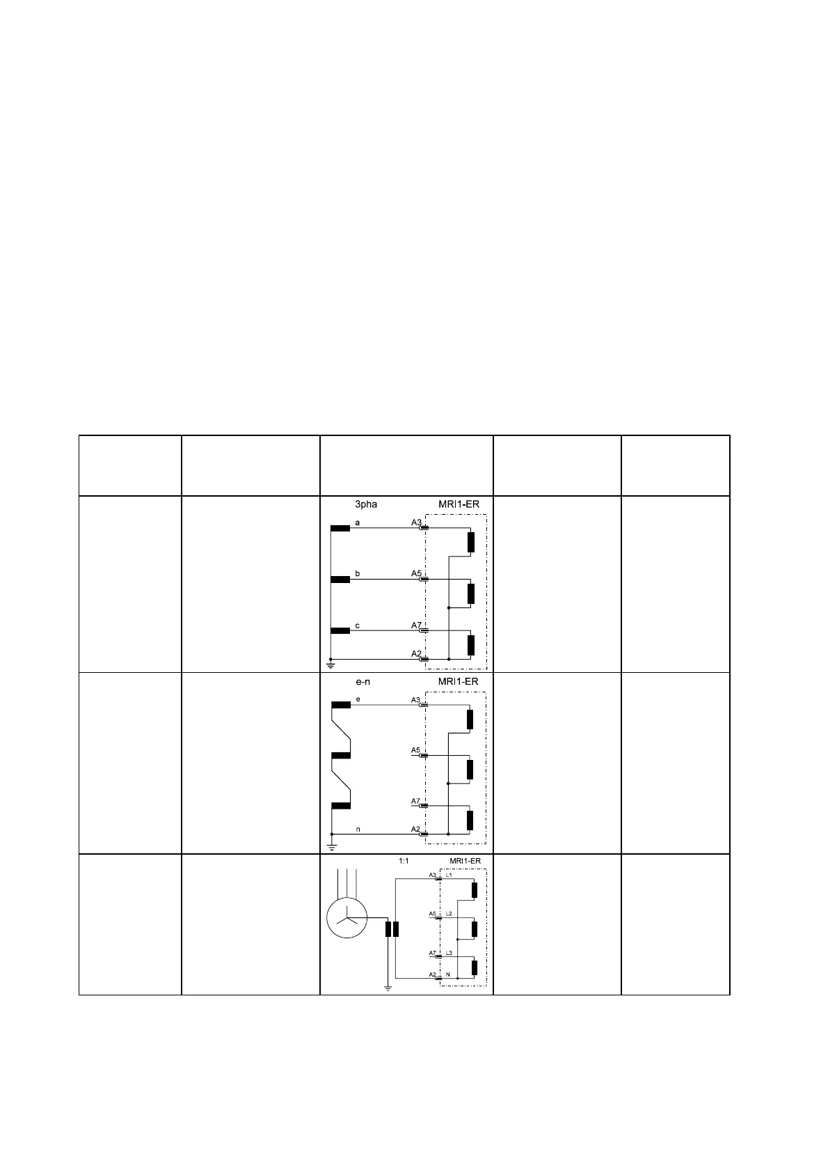
The residual voltage U
E
required for determining earth
fault direction can be measured in three different
ways, depending on the voltage transformer connec-
tions.
(refer to Table 4.1:)Total current can be measured by
connecting the unit either to a ring core C.T. or to cur-
rent transformers in a Holmgreen circuit. However,
maximum sensitivity is achieved if the MRl1 protective
device is connected to a ring core C. T. (see Figure
3.2).
The pick-up values I
E>
and I
E>>
(active or reactive cur-
rent component for cos ϕ or sin ϕ method) for ER-relay
types can be adjusted from 0.01 to 0.45 x I
N
. For re-
lay type MRI1-XR these pick-up values can be ad-
justed from 0.1 to 4.5 % I
N
.
Adjustment
possibility
Application Voltage transformer
connections
Measurd
voltage at
earth fault
Correction fac-
tor for residual
voltage
“3pha”
3-phase voltage
transformer connected
to terminals A3, A5,
A7, A2
(MRI1-IRER;
MRI1-IER;
MRI1-ER/XR)
3 x U
N
= 3 x U
1N
K = 1 / 3
“e-n”
e-n winding
connected to
terminals A3, A2
(MRI1-IER;
MRI1-ER/XR)
U
N
= 3 x U
1N
K = 1 / 3
“1:1”
Neutral-point voltage
(= residual voltage)
terminals A3, A2
(MRI1-IER;
MRI1-ER/XR)
U
1N
= U
NE
K = 1
Table 4.1:

Related product manuals